
TRƯỜNG ĐẠI HỌC MỎ - ĐỊA CHẤT
BỘ MÔN KỸ THUẬT ĐIỆN – ĐIỆN TỬ
ĐỒ ÁN MÔN HỌC
THIẾT KẾ MẠCH ĐIỆN TỬ
HÀ NỘI 04/2025
MÃ SỐ ĐỀ TÀI : TK-13. ĐA-63
SINH VIÊN THỰC HIỆN : Hoàng Xuân Việt
MÃ SINH VIÊN : 2121060733
LỚP : DCCDKTD66-03
GIẢNG VIÊN HƯỚNG DẪN : PGS.TS Kim Ngọc Linh

Mục Lục
ĐỀ TÀI THIẾT KẾ................................................................3
I.Thuyết minh hoạt động sơ đồ nguyên lý:..........................4
II.Tính toán và chọn linh kiện các khâu của mạch phát xung
điều khiển tiristor..............................................................6
III.Tính toán nguồn nuôi :.................................................11
IV. Mô phỏng...................................................................17
2

ĐỀ TÀI THIẾT KẾ
TK - 13 . ĐA – 63. Thiết kế mạch điều khiển SCR trong mạch
điện xoay chiều dùng xung chùm,
fxc
= 12khz, ghép xung
dùng mạch logic AND loại TTL biết :
-Nguồn nuôi
ECS
= 12V , E =
±
12V và +5V
-SCR có :
+ Điện áp điều khiển
Ug
= 2.5V;
+ Dòng điều khiển
Ig
= 200mA;
+ Thời gian mở
Ton
= 150 μs;
-Góc điều khiển đến
α=15 0 °
-Độ sụt áp cho phép của xung
∆ U x
(từ 0.1-0.2);
-Sơ đồ tham khảo TK-13
Yêu cầu:
+ Thuyết minh sơ đồ nguyên lý
+ Vẽ đồ thị thời gian dạng sóng các tín hiệu minh họa nguyên lý
làm việc của
mạch
+ Tính chọn các linh kiện (chọn linh kiện chuẩn),
+ Thiết kế nguồn nuôi cho rơle được lấy điện từ lưới 220V-50Hz
+ Mô phỏng mạch thiết kế.
3

I.Thuyết minh hoạt động sơ đồ nguyên lý:
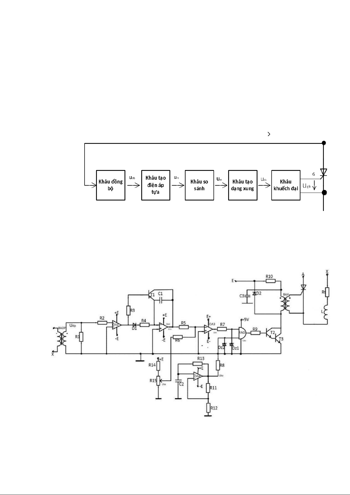
1.1 Sơ đồ khối của mạch điều khiển SCR trong mạch điện
xoay chiều dùng xung chum
Sơ đồ khối của mạch điều khiển SCR trong mạch điện xoay
chiều dùng xung chùm
1.2 Sơ đồ nguyên lý mạch điều khiển SCR trong mạch xoay
chiều dùng xung chum
4

Sơ đồ nguyên lý mạch điều khiển SCR trong mạch xoay
chiều dùng xung chùm
Đây là sơ đồ mạch điều khiển SCR trong mạch xoay chiều
dùng xung chum . Mạch này có khâu đồng bộ , khâu tạo
điện áp tựa , khâu so sánh , khâu tạo dạng xung , khâu
khuếch đại xung
Giải thích sơ đồ nguyên lý :
Khi điện áp từ lưới qua biến áp đồng pha tạo ra 1 điện
áp cùng pha (hình sin ) với điện áp lưới nhưng có biên
độ nhỏ hơn điện áp lưới .Sau đó điện áp cùng pha này
đi qua khuếch đại thuật toán OA1 khi điện áp hình sin
ở nửa chu kì dương điện áp đặt vào đầu đảo của
khuếch đại thuật toán OA1 lớn hơn điện áp đầu không
đảo nên khuếch đại thuật toán bão hòa dương và
ngược lại . Suy ra điện áp đồng pha hình sin sau khi đi
qua khuếch đại thuật toán có dạng xung vuông .
5

