logo
Mạng xã hội chia sẻ tài liệu
Upload
Nâng cấp VIP
Trang chủ » Kỹ Thuật - Công Nghệ » Kiến trúc - Xây dựng - Vật liệu
21 trang
245 lượt xem
19
0

Hồ sơ thiết kế bản vẽ thi công – Công trình nhà ở dân dụng: Điện nước

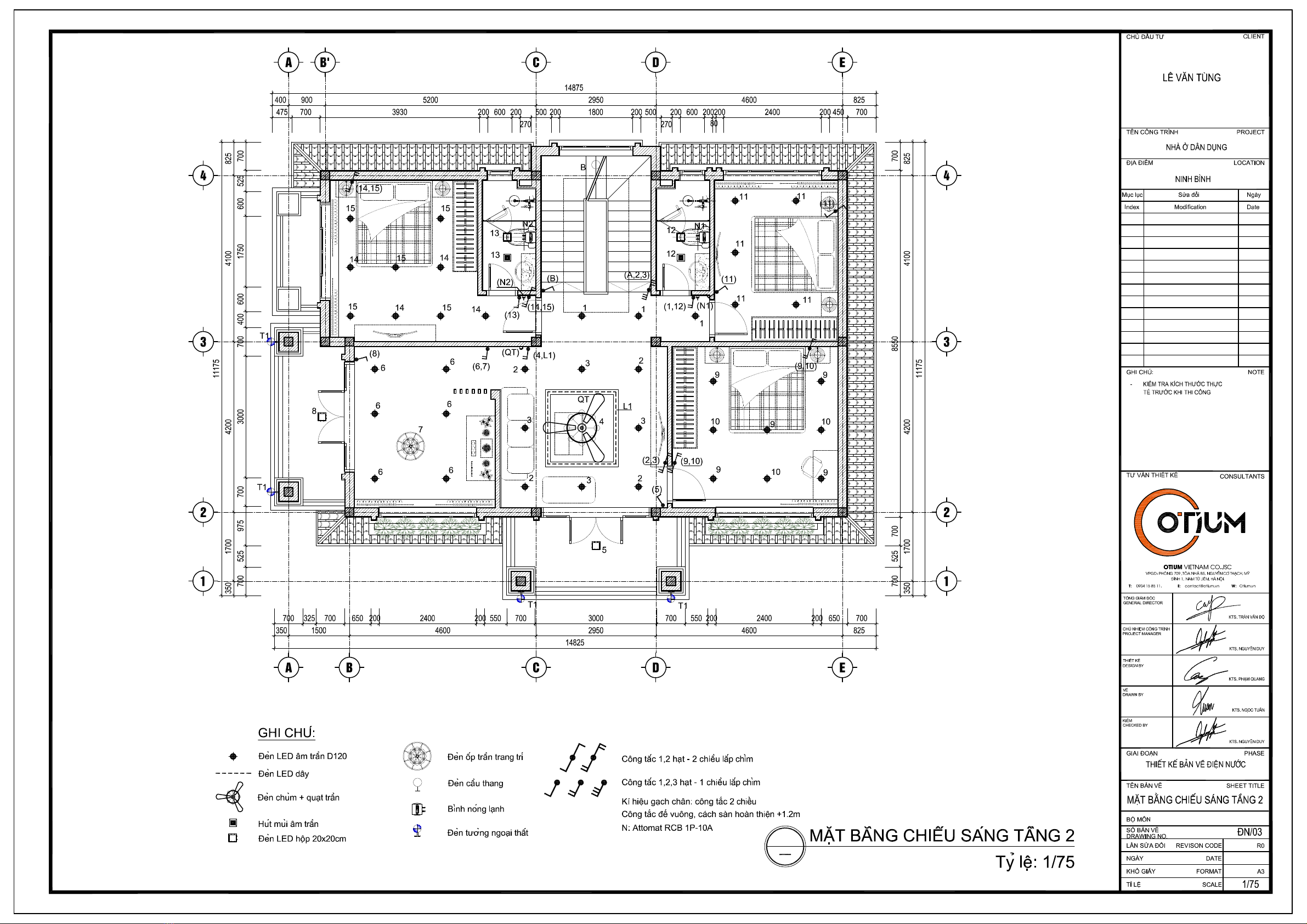
Hồ sơ thiết kế bản vẽ thi công – Công trình nhà ở dân dụng: Điện nước trình bày mặt bằng cấp điện các tầng của nhà ở dân dụng, chi tiết lắp đặt điều hòa, mặt bằng cấp nước các tầng, đặt ống qua sàn bê tông.

Chủ đề:

otiumvn

Thiết kế công trình dân dụng

Tài liệu Thiết kế công trình dân dụng

Share
/
21

Tài liệu liên quan

Ảnh hưởng của thông số hình dạng đến hệ số lưu lượng đập tràn hình thang vuông

Ảnh hưởng của các thông số hình dạng mặt cắt đập tràn hình thang vuông đến hệ số lưu lượng

6 trang
Mô hình CFD: Xác định đặc trưng nước nhảy ổn định trên kênh

Xác định đặc trưng nước nhảy ổn định trên kênh bằng mô hình CFD

7 trang
Thiết kế hệ thống cấp nước trong nhà: Nghiên cứu ứng dụng phần mềm Epanet

Nghiên cứu khả năng ứng dụng phần mềm Epanet để thiết kế hệ thống cấp nước trong nhà

8 trang
Ảnh hưởng của đường quan hệ lực cắt - chuyển vị ngang của gối cách chấn đa lớp đến hiệu quả giảm chấn của nhà cách chấn đáy có kết cấu tường gạch

Ảnh hưởng của đường quan hệ lực cắt - chuyển vị ngang của gối cách chấn đa lớp đến hiệu quả giảm chấn của nhà cách chấn đáy có kết cấu tường gạch

10 trang
Ảnh hưởng của Đặc Trưng Chuyển Động Nền Trận Động Đất Đến Phản Ứng Của Công Trình

Ảnh hưởng của các đặc trưng của chuyển động nền trận động đất đến phản ứng của công trình

8 trang
Thiết kế lựa chọn phương án nâng cấp đầu mối hồ chứa nước An Mã tỉnh Quảng Bình: Ứng dụng lý thuyết độ tin cậy

Ứng dụng lý thuyết độ tin cậy để thiết kế lựa chọn phương án nâng cấp đầu mối hồ chứa nước An Mã tỉnh Quảng Bình

9 trang
Đường cong IDF trạm mưa Tân Sơn Hòa: Xây dựng có xét đến tính không dừng

Xây dựng đường cong IDF cho trạm mưa Tân Sơn Hòa có xét đến tính không dừng

7 trang
Xây dựng phương trình cường độ mưa thiết kế từ dữ liệu đo tại trạm khí tượng Hà Đông, Hà Nội, Việt Nam

Developing a design rainfall intensity equation using measurement data from the Ha Dong meteorological station in Hanoi, Vietnam

12 trang
Mô hình phân tích kết cấu nhà nhiều tầng với phần mềm ETABS: Kinh nghiệm và hướng dẫn

Mô hình phân tích kết cấu nhà nhiều tầng với phần mềm ETABS

17 trang
Hiệu quả giảm chấn của ổ bi lắc ma sát kép cho công trình dân dụng chịu tác động của động đất có xét đến lực kích thích thẳng đứng

Damping effect of double friction pendulum bearings for civil buildings subjected to earthquakes considering vertical excitation forces

5 trang

Tài liêu mới

Thực trạng đỗ xe trên đường ở Hà Nội: Đánh giá và thách thức chuyển đổi năng lượng xanh

Một số đánh giá về thực trạng đỗ xe trên đường và thách thức trong bối cảnh chuyển đổi năng lượng xanh ở thành phố Hà Nội

5 trang
Quy hoạch chuẩn bị kỹ thuật thành phố Đà Lạt: Đáp ứng yêu cầu phát triển đô thị xanh

Quy hoạch chuẩn bị kỹ thuật thành phố Đà Lạt đáp ứng yêu cầu phát triển đô thị xanh

6 trang
Digital Twin: Tiềm năng ứng dụng bản sao kỹ thuật số trong thi công xây dựng nhà nhiều tầng tại Việt Nam

Tiềm năng ứng dụng bản sao kỹ thuật số - Digital Twin trong thi công xây dựng nhà nhiều tầng tại Việt Nam

4 trang
Đánh giá an toàn kết cấu công trình hiện hữu: Quy trình khai thác và sử dụng

Đánh giá an toàn kết cấu công trình hiện hữu trong quá trình khai thác, sử dụng

5 trang
Ảnh hưởng của Silica Fume đến Tính Chất Xi Măng: Ứng Dụng Thi Công Giếng Khoan Dầu

Ảnh hưởng của silica fume đến tính chất của xi măng hướng tới ứng dụng thi công giếng khoan dầu

5 trang
Ảnh hưởng nhiệt độ - độ ẩm đến ứng xử tĩnh của tấm FGM có vi bọt rỗng

Ảnh hưởng nhiệt độ - độ ẩm đến ứng xử tĩnh của tấm FGM có vi bọt rỗng

5 trang
Phân tích ứng xử uốn phi cục bộ tấm nano FGMP vi bọt rỗng: Nghiên cứu với các điều kiện biên khác nhau

Phân tích ứng xử uốn phi cục bộ tấm nano FGMP có vi bọt rỗng với các điều kiện biên khác nhau

5 trang
Tính toán nhiệt độ tới hạn và giới hạn chịu lửa: Phương pháp đơn giản hóa cho cấu kiện kết cấu thép

Phương pháp đơn giản hóa tính toán nhiệt độ tới hạn và giới hạn chịu lửa bản thân đối với cấu kiện kết cấu thép

4 trang
Quy trình kiểm tra, đánh giá điều kiện đảm bảo an toàn vận hành, khai thác sử dụng: Hướng dẫn áp dụng

Áp dụng quy trình kiểm tra, đánh giá các điều kiện đảm bảo an toàn vận hành, khai thác sử dụng

4 trang
Bê tông asphalt tự phục hồi: Tình hình nghiên cứu và triển vọng phát triển

Bê tông asphalt tự phục hồi - tình hình nghiên cứu và triển vọng phát triển

5 trang
Công Thức Xác Định Ứng Suất Tới Hạn Cục Bộ Của Thép Hộp Chữ Nhật Chịu Uốn Đều

Công thức xác định ứng suất tới hạn cục bộ của thép hộp chữ nhật chịu uốn đều

6 trang
Dự báo khả năng chống chọc thủng sàn bê tông cốt thép hai phương bị ăn mòn: Công thức dựa trên mạng nơ ron nhân tạo

Một công thức dựa trên mạng nơ ron nhân tạo dự báo khả năng chống chọc thủng sàn bê tông cốt thép hai phương bị ăn mòn

4 trang
Mô phỏng môi trường gió ngoài trời tại chung cư HH Linh Đàm, Hoàng Mai, Hà Nội

Mô phỏng môi trường gió ngoài trời tại chung cư HH Linh Đàm, quận Hoàng Mai, TP Hà Nội

7 trang
Đánh giá đặc tính khảm xà cừ truyền thống ứng dụng trong trang trí đồ gỗ nội thất hiện đại

Đánh giá đặc tính của khảm xà cừ truyền thống ứng dụng trong trang trí đồ gỗ nội thất hiện đại

7 trang
Ứng dụng thiết kế đồ họa môi trường (EGD) trong nội thất văn phòng hiện đại

Ứng dụng thiết kế đồ họa môi trường (EGD) trong nội thất văn phòng hiện đại

6 trang

AI tóm tắt

- Giúp bạn nắm bắt nội dung tài liệu nhanh chóng!

Giới thiệu tài liệu

Đối tượng sử dụng

Từ khoá chính

Nội dung tóm tắt

Giới thiệu

Về chúng tôi

Việc làm

Quảng cáo

Liên hệ

Chính sách

Thoả thuận sử dụng

Chính sách bảo mật

Chính sách hoàn tiền

DMCA

Hỗ trợ

Hướng dẫn sử dụng

Đăng ký tài khoản VIP

Zalo/Tel:

093 303 0098

Email:

support@tailieu.vn

Phương thức thanh toán

Theo dõi chúng tôi

Facebook

Youtube

TikTok

chứng nhận
Chịu trách nhiệm nội dung: Nguyễn Công Hà
Doanh nghiệp quản lý: Công ty TNHH Tài Liệu trực tuyến Vi Na - GCN ĐKDN: 0307893603
Địa chỉ: 54A Nơ Trang Long, P. Bình Thạnh, TP.HCM - Điện thoại: 0283 5102 888 - Email: info@tailieu.vn
Giấy phép Mạng Xã Hội số: 670/GP-BTTTT cấp ngày 30/11/2015