
SỞ LĐTB&XH TỈNH HÀ GIANG
TRƯỜNG TCDTNT-GDTX BẮC QUANG
CỘNG HOÀ XÃ HỘI CHỦ NGHĨA VIỆT NAM
Độc lập - Tự do - Hạnh phúc
ĐỀ THI HẾT MÔN
ĐỀ SỐ: 01
Môn thi : Cung cấp điện
Mã môn học : MH 17
Khóa/Lớp : ĐCN_KVII-01
Ngày thi : 8 / 10 /2018
Thời gian làm bài: 60 phút
Đề bài:
Câu 1: (5 điểm)
Anh (chi8) ha:y ve: sơ đô? va? trình bày về hệ thống cung cấp điện?
Câu 2: (5 điểm)
Anh (chi8) ha:y
xác định phụ tải tính toán cho một phân xưởng cơ khí với các thông
số sau:
Hệ số sử dụng của các máy trong phân xưởng ksd = 0,1.
Chú ý : Thí sinh không được sử dụng tài liệu. Cán bộ coi thi không được giải thích gì thêm.
Người ra đề
Hoàng Tiến Văn
Đề số: 01
TỔ ĐIỆN CÔNG NGHIỆP
(Ký và ghi rõ họ tên)
KHOA ĐIỆN – ĐIỆN TỬ
(Ký và ghi rõ họ tên)

ĐÁP ÁN ĐỀ THI HẾT MÔN
ĐỀ SỐ: 01
Môn thi : Cung cấp điện
Mã môn học : MH 17
Khóa/Lớp : ĐCN_KVII-01
Ngày thi : 8/ 10/2018
Thời gian làm bài : 60 phút
TT NỘI DUNG ĐIỂM
1 Câu 1 5 điểm
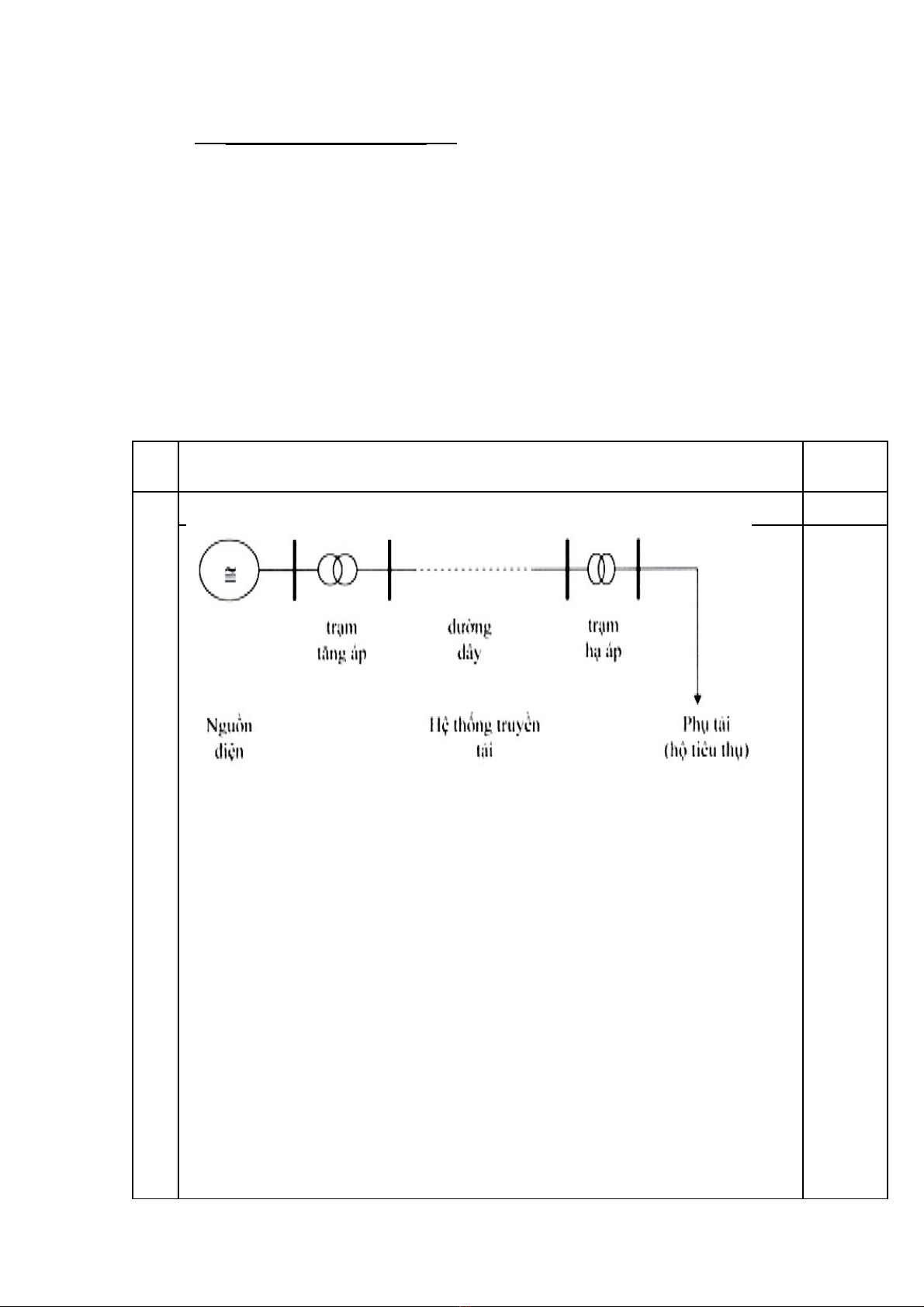
- Hệ thống cung cấp điện bao gồm các nhà máy điện, trạm biến
áp, các đường dây tải điện và các thiết bị điện khác được kết nối với
nhau thành một hệ thống làm nhiệm vụ sản suất, truyền tải và cung
cấp điện năng tới các hộ dùng điện.
* Lưới hệ thống.
- Lưới hệ thống bao gồm các đường dây tải điện và các trạm biến
áp khu vực nối liền các nhà máy điện tạo thành hệ thống điện, có các
đặc điểm:
+ Lưới điện có nhiều mạch vòng kín, để khi cắt điện bảo quản
đường dây hoặc khi có sự cố 1 đến 2 đường dây vẫn đảm bảo liên lạc
hệ thống.
+ Vận hành kín để đảm bảo liên lạc thường xuyên và chắc chắn
giữa các nhà máy điện với nhau và với phụ tải.
+ Có điện áp từ 100kV đến 500kV.
1 điểm
1 điểm
SỞ LĐTB&XH TỈNH HÀ GIANG
TRƯỜNG TCDTNT-GDTX BẮC QUANG
CỘNG HOÀ XÃ HỘI CHỦ NGHĨA VIỆT NAM
Độc lập - Tự do - Hạnh phúc

+ Lưới được thể hiện chủ yếu bằng các đường dây trên không.
+ Phải bảo quản định kỳ hang năm.
* Lưới truyền tải.
- Lưới truyền tải làm nhiệm vụ tải điện từ các trạm khu vực tới
các trạm trung gian. Lưới truyền tải có các đặc điểm sau:
+ Có điện áp 35kV, 10kV, 220kV.
+ Chủ yếu thực hiện bằng đường dây trên không, khi cần thiết thì
có thể dùng cáp ngầm.
+ Bảo quản định kỳ hang năm.
+ Lưới 110kV trở lên, trung tính máy biến áp nối đất trực tiếp.
* Lưới phân phối.
- Lưới điện phân phối làm nhiệm vụ phân phối điện năng từ các
trạm trung gian tới phụ tải.
- Lưới phân phối có các đặc điểm:
+ Lưới phân phối gồm có hai phần:
-> Lưới phân phối trung áp, có điện áp 6kV, 10kV, 15kV, 22kV
phân phối điện cho các trạm phân phối trung áp/hạ áp và các phụ tải
trung áp.
-> Lưới phân phối hạ áp cung cấp điện cho các phụ tải hạ áp
380/220V.
+ Ngoài các sự cố gây mất điện trên lưới phân phối còn có yêu
cầu mất điện theo kế hoạch khá dài để bảo quản, cải tạo và đóng trạm
mới.
+ Lưới phân phối có nhiệm vụ chính trong việc đảm bảo chất
lượng phục vụ tải (bao gồm chất lượng điện áp, độ tin cậy cung cấp
điện).
+ Lưới điện phân phối có cấu trúc kín nhưng vận hành hở. Khi có
sự cố ở lưới phân phối thì máy cắt gần điểm sự cố nhất về phía nguồn
bị cắt điện, chỉ có phần lưới sự cố bị cắt điện phần lưới tốt còn lại vãn
được đóng điện để tiếp tục vận hành. Phụ tải đặc biệt cần độ tin cậy
cao được dự phòng bằng đường dây trung áp hoặc hạ áp.
+ Phụ tải của lưới phân phối có độ đồng thời thấp.
1 điểm
2 điểm
2 Câu 2 5 điểm
n = 3+4+4+5+10 = 26
P = (3.10)+(4.7)+(4.4,5)+(5.2,8)+(10.1) = 100 kW
n1 = 3+4 = 7
P1 = (3.10)+(4.7) = 58 kW
5 điểm

n* = n1/n = 7/26 = 0,27
p* = P1/P = 58/100 = 0,58
Từ n* và P* tra bảng ta được
*
hq
n
=0,66
Số thiết bị hiệu quả nhq =
*
hq
n
.n = 0,66.26 = 17,16
Từ nhq và ksd tra bảng ta được kmax = 1,91
38
max
1
. . 1,91.0,1.100 19,1
tt sd dmi
P k k P kW
= = =
26
1
26
1
. os
cos 0,61
i i
tb
i
P c
P
ϕ
ϕ
= =
=>
1,299
tb
tg
ϕ
=
. 19,1.1,299 24,8
tt tt tb
Q P tg
ϕ
= = =
kVAr
2 2
31,3
tt tt tt
S P Q
= + =
kVA
Người ra đáp án
Hoàng Tiến Văn
Đáp án đề số: 01
TỔ ĐIỆN CÔNG NGHIỆP
(Ký và ghi rõ họ tên)
KHOA ĐIỆN – ĐIỆN TỬ
Nguyễn Thị Phương Nga

