
Thiết kế nhà 2 tầng thoáng đãng, DT 8,7x19m

Tôi muốn xây nhà kiểu cấp 4 giả biệt thự, nhà dạng L, có tầng lửng, chiều cao nhà
vừa phải, có sân trước 3m, sân sau 1m, hàng rào bao quanh nhà nhưng tận dụng
một bức tường để làm hàng rào. Với hiên nhà, có tầng cấp 5 bậc trước khi bước lên
hiên. Còn tầng trệt, tôi muốn gồm có 1 phòng khách, 1 nhà vệ sinh nhỏ , 1 phòng
bếp + phòng ăn, nơi để xe máy, láng nước nhỏ đề rửa chén, nơi để giặt đồ.
Ngoài ra, không gian tiếp khách và bếp ăn trải dài trong cùng một không gian và
được ngăn cách bởi vách ngăn tượng trưng thể hiện rõ chức năng giữa hai không
gian nhưng vẫn tạo được sự hài hoà với nhau.
Bên cạnh đó, tôi cũng muốn không gian bếp ăn thoáng mát và tràn ngập ánh sáng
thông qua cửa ngách ra sân sau. Ở phòng khách tôi cần một khoảng không gian
tường để gắn một bàn thờ, vậy nhờ chuyên mục tư vấn xem nên để ở đâu để vừa
trang nghiêm vừa đẹp.
Cuối cùng là tầng lửng sẽ gồm 1 phòng ngủ của bố mẹ và 2 phòng ngủ khác, 1
phòng vệ sinh chung.
Một đều nữa tôi muốn là nhà tận dụng càng nhiều ánh sáng càng tốt.

Trả lời:
Xin chào bạn!
Cám ơn bạn đã gửi câu hỏi về cho chuyên mục. Theo yêu cầu của bạn chúng tôi
xin tư vấn cho bạn như sau: Với diện tích như bạn cung cấp, chúng tôi thiết kế với
tiêu chí không gian mở cho toàn bộ ngôi nhà. Ngoài ra, bạn có yêu cầu xây nhà 1
tầng cộng thêm 1 tầng lửng nhưng để đạt mong muốn "1 phòng ngủ của bố mẹ và
2 phòng ngủ khác, 1 phòng vệ sinh chung" thì xây tầng lửng sẽ hơi chật và bí bách.
Chưa kể chi phí xây tầng lửng như thế cũng gần tương đương với xây lầu nên
chúng tôi đã tư vấn cho bạn thay tầng lửng bằng lầu. Cụ thể:
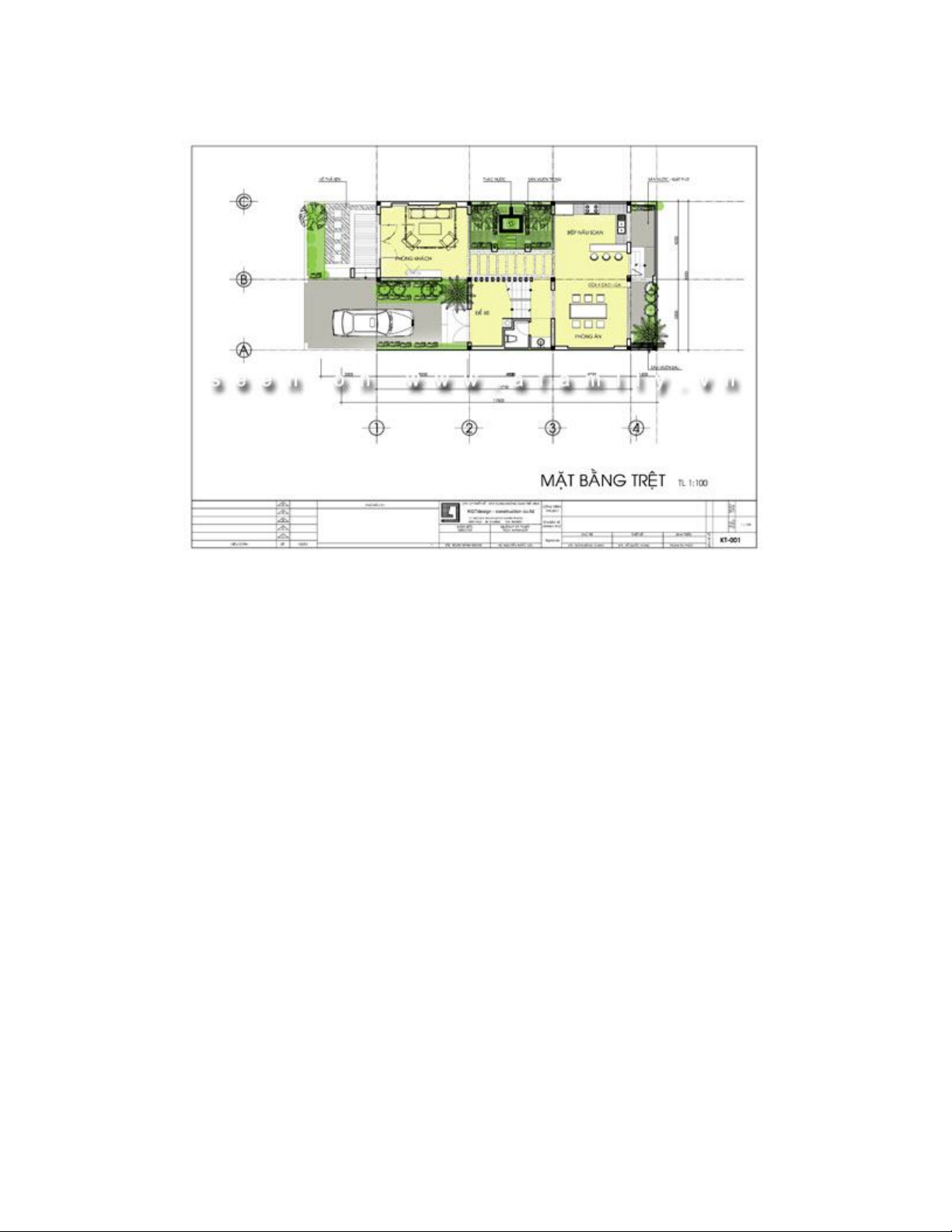
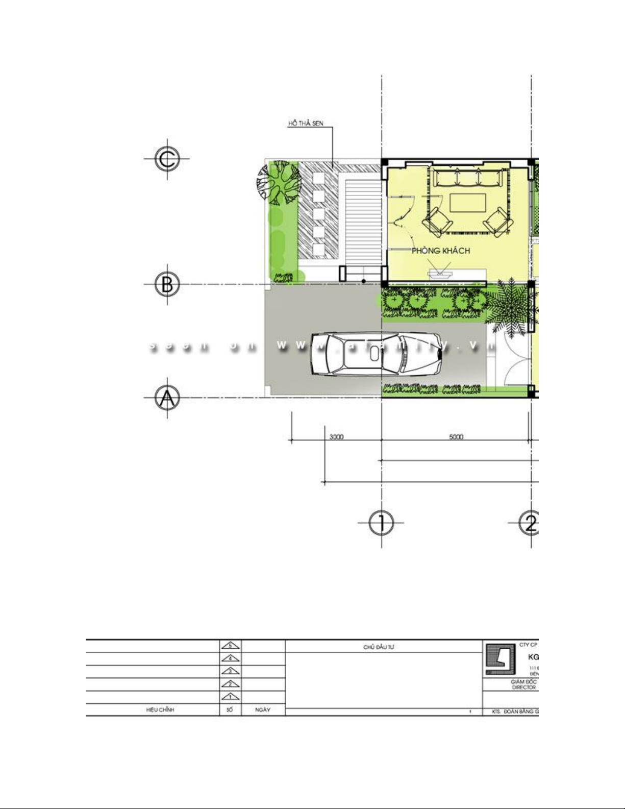
- Tầng trệt: Phía trước là phòng khách, kết hợp với tủ thờ kệ ti vi. Vị trí giếng trời -
sân trong là không gian kết nối giữa phòng khách và phòng ăn.

Toàn bộ sơ đồ tầng trệt


