
Thiết kế nhà ống 5x15m

Yêu cầu:
- Tầng trệt gồm: gara, phòng khách, WC và 1 phòng ngủ nhỏ.
- Tầng lửng gồm: Bếp và phòng ăn;
- Tầng 1 gồm: 1 phòng ngủ cuối nhà hướng tây có WC, 1 phòng ngủ phía trước
hướng đông, 1WC;
- Tầng 2 gồm: sân thượng, 1 phòng thờ, 1 phòng ngủ, 1 WC + phòng giặt và sân
phơi.
Mong archi.vn tư vấn về tuổi và thiết kế những công năng phù hợp với ngôi nhà.
Xin trân trọng cảm ơn.
Trả lời:
Mảnh đất của anh khá đẹp và là điều kiện để xây dựng một ngôi nhà theo đúng
mong muốn của mình. Dưới đây Công ty Kiến trúc Đô Thị Xanh xin đưa ra

phương án thiết kế kiến trúc mặt bằng như sau:
Về công năng:
Công năng của ngôi nhà là yếu tố quan trọng bởi nó liên quan tới thói quen, nhu
cầu sử dụng của gia đình nói chung và các thành viên trong gia đình nói riêng.
Việc bố trí các không gian sinh hoạt chúng tôi chủ yếu dựa trên yêu cầu của gia
đình và ý tưởng của KTS để đưa ra một phương án tối ưu, hợp lý nhất.
Tầng 1:Bao gồm không gian chính như phòng khách, phòng ngủ nhỏ, toilet, kho
nhỏ trên toilet.

Chiều ngang đất của anh là 5m nên rất đẹp, phòng khách theo thiết kế có S=28m2,
phòng ngủ nhỏ S=10m2. Ngoài ra có một tiểu cảnh dưới gầm cầu thang giúp việc
ngồi nói chuyện tiếp khách được thoải mải, khoáng đạt và đậm đà câu chuyện. Phía
trước nhà có gara để được 1 ô tô và khoảng 5 chiếc xe máy. Ngoài cửa đặt một tiểu
cảnh nhỏ làm đẹp cho phía trước nhà. Tường bên trái được trang trí gờ phào, giật
cấp và đèn chiếu, ngoài ra còn giúp che được hộp kỹ thuật.
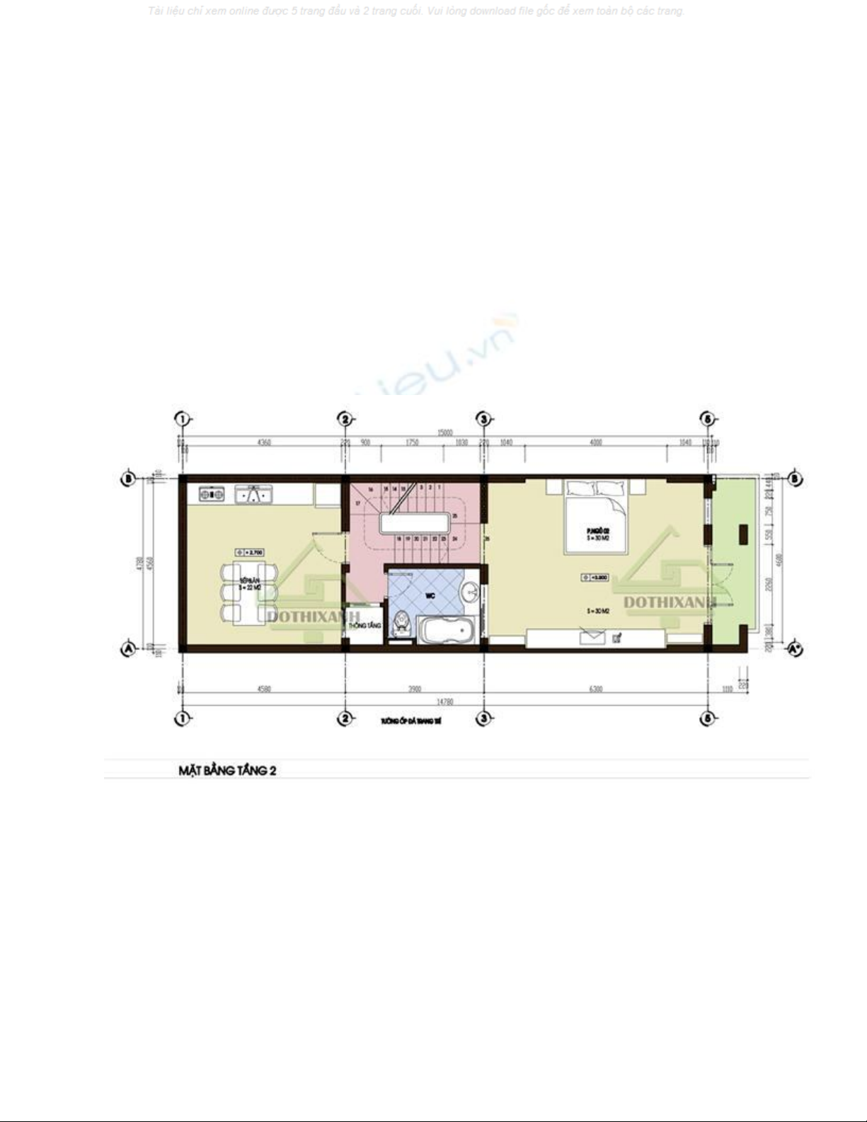
Tầng lửng:Là không gian bếp có diện tích 22m2 và rất tiện với lối ra toilet.

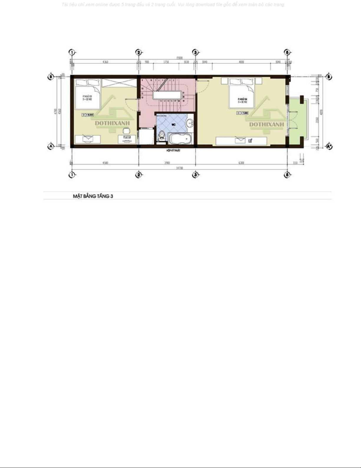
Tầng 2 và tầng 3gồm 3 phòng ngủ: 2 phòng ngủ lớn và một phòng ngủ nhỏ. Phòng
ngủ nhỏ 22m, phòng ngủ lớn 33m.
Phòng vệ sinh được bố trí sát một giếng trời, đường vào vệ sinh được tránh hướng
đâm của cầu thang. Phần tường trong lòng của giếng trời là một bức tranh đá
phong thủy được trang trí và treo các chậu cây và hoa.

