
Tr ng ĐH Ki n Trúc Tp.HCMườ ế Bài t p l n TH Y C Cậ ớ Ủ Ự
C
1
C
2
G
2=380 kG
z
2
0,511m
G
1=1510 kG
R=1m
2,06m
1,333m
GVHD : Leâ Vaên Thoâng Trang: 1
BÀI T P L N TH Y L C Ậ Ớ Ủ Ự
------o0o-------
Đ Bài : ề
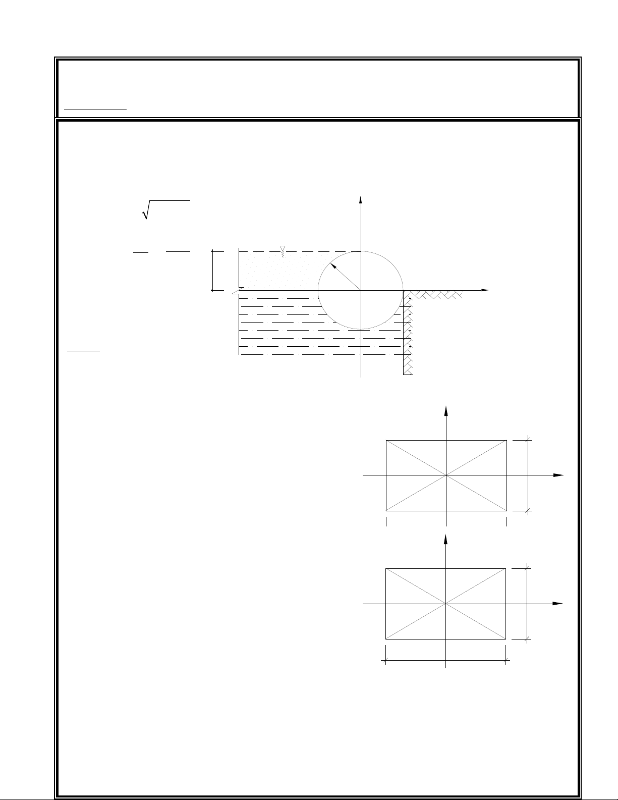
Bài 9 : (T No3) M t phao xi lanh bán kính R=0,3 m dùng đ ngăn m t l p d u có đ sâu 0,3ờ ộ ể ộ ớ ầ ộ
m .Đ nh c a phao trùng v i m t thoáng c a d u . Tính áp l c ngang và áp l c đ ng tác d ng lên 1ỉ ủ ớ ặ ủ ầ ự ự ứ ụ
đ n v dài c a phao . Xác đ nh v trí đ ng tác d ng c a áp l c ngang và áp l c đ ng do d u tácơ ị ủ ị ị ườ ụ ủ ự ự ứ ầ
d ng lên phao.ụ
Bài Làm
Ap d ng bài toán áp l c tác d ng vào thành cong có đ ng sinh // 1 tr c :ụ ự ụ ườ ụ
- Ta có : Tr c Y // đ ng sinhụ ườ
=> Ap l c tác d ng theo ph ng d c phao Nự ụ ươ ọ y= 0
* Áp l c n c tác d ng theo ph ng đ ng Oz :ự ướ ụ ươ ứ
-Xác đ nh tr ng tâm c a thành congị ọ ủ
theo ph ng đ ng : Cươ ứ 1
Chi u m t cong lên m t ph ng theo ph ngế ặ ặ ẳ ươ
vuông góc tr c z .ụ
Ta có nh hình v :ư ẽ
C1 cách m t thoáng 0,15m theo ph ng zặ ươ
C1 trùng v i trung đi m c a 1 đ n v dài ớ ể ủ ơ ị
theo ph ng yươ
-Xác đ nh tr s Nị ị ố z : có
d
γ
=0,8.
n
γ
=7848 N/m3
(z h ng lên trên,Nướ z tác d ng xu ng)ụ ố
Nz = -
d
γ
. R2.(0,7
π
+0,8) =
= - 7848.0.32. (0,7
π
+0,8)
=> Nz= -2648,7 N
* Áp l c d u tác d ng theo ph ng ngang 0x :ự ầ ụ ươ
-Xác đ nh tr ng tâm t ng t nh trên :ị ọ ươ ự ư
-Xác đ nh tr s áp l c ngang :ị ị ố ự
Nx=
∫
dNx =
d
γ
.hcx .Ax
Ta coù : Ax = 0,3.1=0,3m2
hcx =0,15 m
=> Nx = 7848 .0,15 .0,3=353,16 N
* Toång löïc taùc duïng vaøo phao :
N =
2 2 2
X y z
N N N+ +
=
2 2
(353,16) 0 (151,5)+ +
=384,3 N
* Xaùc ñònh ñöôøng taùc duïng cuûa aùp löïc ngang Nx vaø aùp löïc ñöùng Nz :
tg
Nz
Nx
=
151,5
353,16
=0,429
=>
α
= 650
Baøi 1 : (Tôø No4) Moät phao hình truï baùn kính R=1m ,cao H=1,333 m vaø troïng löôïng G1=1510
kG noåi trong nöôùc. Troïng taâm C1 cuûa phao caùch ñaùy moät khoaûng z1=0,511 m .Ñaët theâm leân
ñaùy treân cuûa phao moät taûi troïng phuï G2=380 kG vaø troïng taâm C2 cuûa noù naèm treân truïc
noåi . Tính ñoä cao thoái thieåu z2 cuûa C2 ñeå cho caû heä thoáng phao vaø taûi troïng phuï vaãn caên
baèng oån ñònh.
0,3m
Z
X
R =0,3m
O
Daàu
Nöôùc
?=0,8
0,6 m
C
2
1 ñôn vò daøi
X
Y
0,3 m
C
1
1 ñôn vò daøi
Z
Y

Tr ng ĐH Ki n Trúc Tp.HCMườ ế Bài t p l n TH Y C Cậ ớ Ủ Ự
GVHD : Leâ Vaên Thoâng Trang: 2
C
1
C
2
G
2
hz
2
z
1
G
1
H
R=1m
Baøi Laøm
Ta coù :
Ñeå vaät noåi trong nöôùc theo chieàu ñöùng ta coù :
3 3 3
9,81.10 / 918 /
n
N m kG m
ρ
= =
1 2
. . .
g n
V G G h A
ρ ρ
= + =
+ A=
2
.R
π
=> h =
1 2
2 2
1510 380 2,06
918. . 918. .1
G G m
R
π π
+ +
= =
Xaùc ñònh troïng taâm ñaåy noåi D :
ZD = h/2 =2,06/2 = 1,03 m
Ñeå phao caân baèng oån ñònh :
ZC < ZD = 1,03 m
Choïn ZC = 1m
e = 1,03 – 1 = 0,03 m
- Choïn truïc chuaån taïi troïng taâm C2 :
=> ZC = (Jx1 + (Z2)2. 1,333.2) + Jx2
=> Z2 =
1 2
1,333.2
X X
Zc J J− −
=1,532 m
Z
X
O
R =0,3m
Daàu
Nöôùc
0
65

Tr ng ĐH Ki n Trúc Tp.HCMườ ế Bài t p l n TH Y C Cậ ớ Ủ Ự
GVHD : Leâ Vaên Thoâng Trang: 3
C
1
C
2
G
2=380 kG
z
2
0,511m
G
1=1510 kG
R=1m
2,06m
1,333m

