
UC3842/UC3843…/UC3845
Th năm - 17/01/2013 21:34ứ
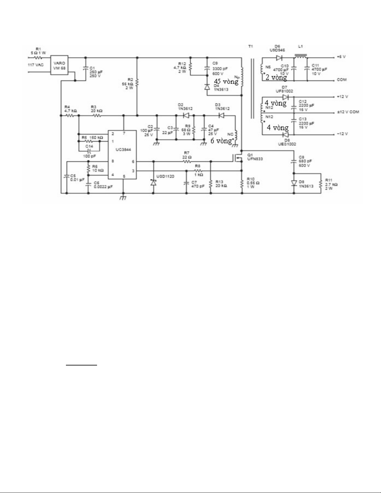
IC ngu n Switching UC3842 cũng là lo i Ic ngu n Switching đc s d ng r t ph bi n trong các thi t bồ ạ ồ ượ ử ụ ấ ổ ế ế ị
đi n t dân d ng và công nghi p nói chung hi n nay. Có các lo i cùng h IC này là UC3842, UC3843,ệ ử ụ ệ ệ ạ ọ
UC3844 và UC3845 đu đc g i là cùng H IC 3842. Các IC này có cùng nguyên lý m ch bên trong gi ngề ượ ọ ọ ạ ố
nhau ch khác nhau duy nh t là m c đi n áp so sánh – ph n h i đ t đng đi u ch nh đi n áp ra.ỉ ấ ứ ệ ả ồ ể ự ộ ề ỉ ệ
o Các chân ch c năngứ
Các
lo i IC nói trên cũng có hai c u hình c b n là c u hình 14 chân và c u hình 8 chân.ạ ấ ơ ả ấ ấ
Vì v y, hình trên đây mô t th t chân l n l t cho c u hình 14 chân và 8 chân.ậ ả ứ ự ầ ượ ấ
Tuy v y, lo i 14 chân th c ch t cũng ch có 8 chân có hi u l c s d ng, 6 chân cònậ ạ ự ấ ỉ ệ ự ử ụ
l i là NCạ (Non – Connection t c là đ h m ch)ứ ể ở ạ không s d ng đn vì v y nênử ụ ế ậ
th c ch t lo i IC có c u hình 14 chân cũng ch là 8 chân c b n theo tu n t nhự ấ ạ ấ ỉ ơ ả ầ ự ư
d i đây:ướ
Chân 1: Hi u ch nh h s khuy ch đi c a m ch so sánh đi n áp ra, thôngệ ỉ ệ ố ế ạ ủ ạ ệ
th ng đc n i v chân 2 thông qua m t đi n tr 100 ÷ 150k song song v i m tườ ượ ố ề ộ ệ ở ớ ộ
t h i ti p 100pF;ụ ồ ế
Chân 2: Là chân so sánh đi n áp ra v i m c so sánh chu n đi v i UC3842 làệ ớ ứ ẩ ố ớ
2,5 ÷ 3Vpp và kho ng 10 ÷ 12VảPP đi v i UC3844 cho nên chân 2 c a UC3842ố ớ ủ
th ng đc phân áp b i m t c p đi n tr Rườ ượ ở ộ ặ ệ ở 1 = 100k n i v i đi n áp 12 ÷ố ớ ệ
16V (chung v i chân 7 c p ngu n)ớ ấ ồ và R2 = 18 ÷22k n i xu ng âm ngu n;ố ố ồ
Chân 3: Là chân kh ng ch m c C ng đ Dòng t i t i đa, thông th ngố ế ứ ườ ộ ả ố ườ
đc n i v i m t đi n tr R = 1k và m t T l c n i đt C = 470pF ÷ 1nF đ soượ ố ớ ộ ệ ở ộ ụ ọ ố ấ ể
sánh v i m c tăng c a dòng đi n t i n u dòng t i v t quá m c qui đnhớ ứ ủ ệ ả ế ả ượ ứ ị (sao cho

đi n áp đt vào chân 3 l n h n 1V)ệ ặ ớ ơ thì IC UC3842 s ng t dao đng trong vài chuẽ ắ ộ
k dao đng k ti p theo nh m b o v H th ng ngu n;ỳ ộ ế ế ằ ả ệ ệ ố ồ
Chân 4: Là chân t o ra dao đng t kích nh m t R = 15 ÷ 27kạ ộ ự ờ ộ (giá tr chu nị ẩ
là 27k) n i t chân 4 lên chân 8ố ừ (t o đi n áp chu n Vạ ệ ẩ REF) và m t t kích dao đng Cộ ụ ộ
= 2,2 ÷ 3,3nF (giá tr chu n là 2,7nF)ị ẩ đ t o ra dao đng trong kho ng 27 đnể ạ ộ ả ế
40kHz (đi v i UC3844 thì t dao đng C = 1nF và R = 10k đ có th t o ra T nố ớ ụ ộ ể ể ạ ầ
s dao đng t kích lên t i 100kHz)ố ộ ự ớ ;
Chân 5: Là chân ngu n âm c a IC UC3842;ồ ủ
Chân 6: Là ngõ ra c a Tín hi u Dao đng PWM đã đc đi u ch đ r ngủ ệ ộ ượ ề ế ộ ộ
xung theo đi n áp ra yêu c u đ cung c p cho c c G c a Transistor Tr ng Côngệ ầ ể ấ ự ủ ườ
su t ngu nấ ồ (th ng dùng 2SK1794 ho c 2SK794… ho c tu theo công su t và đi nườ ặ ặ ỳ ấ ệ
áp yêu c u mà có th s d ng t ng ng)ầ ể ử ụ ươ ứ ;
Chân 7: Là chân ngu n cung c p c a IC UC3842 v i đi n áp cung c p trongồ ấ ủ ớ ệ ấ
kho ng 13,5V đn 40V;ả ế
Chân 8: Là chân t o đi n áp chu n Vạ ệ ẩ REF = 2,5V (chú ý: N u ng t l i ra daoế ắ ố
đng PWM – chân 6 c a IC UC3842 v i c c G c a Transistor Tr ng Công su tộ ủ ớ ự ủ ườ ấ
ngu n thì khi s d ng đng h đ đo chân s 8 v i âm ngu n và khi có ngu n cungồ ử ụ ồ ồ ể ố ớ ồ ồ
c p vào chân 7 c a IC UC3842 thì s th y kim đng h dao đng có th th y rõ sấ ủ ẽ ấ ồ ồ ộ ể ấ ự
dao đng c a kin đng h là IC v n dao đng đc. N u không th y dao đngộ ủ ồ ồ ẫ ộ ượ ế ấ ộ
ho c đi n áp này b ng 0V thì IC đã b h ng)ặ ệ ằ ị ỏ ;
o Các đi u c n l u ýề ầ ư
Chú ý 1: Đi v i các lo i ngu n s d ng Transistor Tr ng làm Công su tố ớ ạ ồ ử ụ ườ ấ
Ngu n thì c n ph i chú ý r ng theo lý thuy t thì Tr kháng Ngõ vào Zồ ầ ả ằ ế ở GS đc coi làượ
b ng vô cùngằ (t c là c c l n)ứ ự ớ t c là đng nghĩa r ng tiêu hao dòng đi u khi nứ ộ ằ ề ể
IGS coi nh b ng 0 nh ng trên th c t khi Transistor Tr ng m cho dòng đi n điư ằ ư ự ế ườ ở ệ
qua ‘máng d n’ D – Sẫ (đc t o b i hai c c D và S)ượ ạ ở ự thì Tr kháng Ngõ vào ZởGSsẽ
b t t gi m r t th p khi n cho dòng đi u khi n Iị ụ ả ấ ấ ế ề ể GS s tăng lên r t nhi u.ẽ ấ ề
Vì v y, các m ch cung c p xung đi u khi n cho Transistor tr ng ph i t oậ ạ ấ ề ể ườ ả ạ
đc 2 m c c ng đ xung kích đi u khi n là m c 1 cung c p ban đuượ ứ ườ ộ ề ể ứ ấ ầ (c cự
ti u)ể ch c n t o ra v i c ng đ r t nhỉ ầ ạ ớ ườ ộ ấ ỏ (1 ÷ 4mA) đ kích m Transistor Tr ngể ở ườ
nh ng sau khi Transistor Tr ng m thì ph i tăng lên m c 2 v i c ng đư ườ ở ả ứ ớ ườ ộ (15 ÷
25mA) l n h n đ đ duy trì cho kh năng ho t đng c a M ch Dao đng và Đi uớ ơ ủ ể ả ạ ộ ủ ạ ộ ề
khi n.ể
Trên c s đó, đi n áp cung c p cho IC UC3842 đc t o b i 2 đngơ ở ệ ấ ượ ạ ở ườ
ngu n bao g m nh sau:ồ ồ ư
Ngu n c p tr cồ ấ ướ

Đng ngu n c p tr c đc c p qua m t đi n tr Rườ ồ ấ ướ ượ ấ ộ ệ ở 2 nh m ch d i đây sao cho cóư ạ ướ
th t o ra m t c ng đ dòng đi n ban đu trong kho ng 1 ÷ 2mA đ IC ho t đng vàể ạ ộ ườ ộ ệ ầ ả ể ạ ộ
t o ra xung đi u khi n cho Transistor Tr ng v i m c c ng đ ban đu nh nh t và khiạ ề ể ườ ớ ứ ườ ộ ầ ỏ ấ
Transistor d n dòng qua ‘máng d n D – S’ thì Tr kháng Ngõ vào t t xu ng khi n choẫ ẫ ở ụ ố ế
c ng đ đi u khi n t i chân 6 c a UC3842 s tăng lên m nh h n khi n cho đi n ápườ ộ ề ể ạ ủ ẽ ạ ơ ế ệ
ngu n cung c p t i chân 7 thông qua Rồ ấ ạ 2 s b t t xu ng vì Rẽ ị ụ ố 2 không th cung c p đ dòngể ấ ủ
đi n yêu c u h UC3842 đ đi u khi n cho Transistor Tr ng.ệ ầ ọ ể ề ể ườ
Ngu n quay v (ngu n ph n h i - feedback)ồ ề ồ ả ồ
C n ph i có m t đng ngu n th 2 chính là đng ngu n quay v t Bi nầ ả ộ ườ ồ ứ ườ ồ ề ừ ế
áp Công su t ngu n T1 thông qua cu n NC và đc ch nh l u b i Diode Dấ ồ ộ ượ ỉ ư ở 3 r iồ
đc đnh th i b ng m ch đnh th i Rượ ị ờ ằ ạ ị ờ 9C4đ n đnh đi n áp ra cho T i sau Bi n ápể ổ ị ệ ả ế
Công su t thông qua các Cu n N12, N5...ấ ộ (R9 = 68 ÷ 470W/1÷ 3W và t l c Cụ ọ 4 =
47mF) sau đó l i đc d n kh ng ch b i Diode Dạ ượ ẫ ố ế ở 2 đ c p tr v cho UC3842 thìể ấ ở ề
m i đm b o duy trì đc đi n áp cung c p n đnh cho UC3842 t i chân s 7.ớ ả ả ượ ệ ấ ổ ị ạ ố
Chú ý 2: M ch trên đây đc g i là m ch cung c p đi n áp ph n h i và soạ ượ ọ ạ ấ ệ ả ồ
sánh đi n áp ra th đng là b i vì theo Nguyên lý Bi n áp thì n u m t Bi n áp b tệ ụ ộ ở ế ế ộ ế ấ
k có n đng đi n áp ra: Vì Công su t c a Bi n áp b ng t ng công su t đc tiêuỳ ườ ệ ấ ủ ế ằ ổ ấ ượ
th b i các T i t i t t c các đng đi n áp c a Bi n áp v y nên n u có b t kụ ở ả ạ ấ ả ườ ệ ủ ế ậ ế ấ ỳ
đng đi n áp ra nào có T i tiêu th m nh lên thì không ch đng đi n áp ra đó sườ ệ ả ụ ạ ỉ ườ ệ ẽ
b t t đi n áp mà nó s kéo theo t t c các đng đi n áp ra khác đu b đi n ápị ụ ệ ẽ ấ ả ườ ệ ề ị ệ
theo cùng m t t l .ộ ỷ ệ
D a vào nguyên lý này mà ng i ta đã t o ra ph ng pháp so sánh đi n ápự ườ ạ ươ ệ
th đng là có th so sánh đi n áp ra b ng cách so sánh đi n áp trên m t đngụ ộ ể ệ ằ ệ ộ ườ

đi n áp ra b t k mà không c n ph i so sánh t t c các đng đi n áp ra đi v iệ ấ ỳ ầ ả ấ ả ườ ệ ố ớ
m t Bi n áp Công su t Ngu n Switching có nhi u đng đi n áp ra khácộ ế ấ ồ ề ườ ệ
nhau (theo m ch trên, Bi n áp Ngu n Switching có t t c 4 đng đi n áp ra g mạ ế ồ ấ ả ườ ệ ồ
1 đng đi n áp ra 5V, m t c p đi n áp ra l ng c cườ ệ ộ ặ ệ ưỡ ự ±12V và m t đng đi n ápộ ườ ệ
quay v 15V t i cu n NC)ề ạ ộ .
V nguyên t c, đ đi n áp ra có th đt đ chính xác cao thì ng i ta ph iề ắ ể ệ ể ạ ộ ườ ả
l y m t trong các đng đi n áp ra 5V ho c ±12V đ đa v so sánh t i chân 2ấ ộ ườ ệ ặ ể ư ề ạ
c a UC3842 nh m đi u ch nh đi n áp raủ ằ ề ỉ ệ (n u theo cách này thì đc g i là ph ngế ượ ọ ươ
pháp so sánh tích c c vì nó so sánh tr c ti p đi n áp ra c th )ự ự ế ệ ụ ể nh ng do có nhi uư ề
đng đi n áp ra nên không th so sánh đng th i t t c các đng đi n áp raườ ệ ể ồ ờ ấ ả ườ ệ
đc mà ng i ta đành ph i ch n m t trong các đng đi n áp ra b t k và đngượ ườ ả ọ ộ ườ ệ ấ ỳ ườ
này chính là đng đi n áp quay v đ ‘nuôi’ UC3842 và thông qua đng đi n ápườ ệ ề ể ườ ệ
quay v mà ng i ta th c hi n so sánh luôn đi n áp ra.ề ườ ự ệ ệ
Vì v y, cách so sánh này đc g i là so sánh th đng t c là b n thân đi nậ ượ ọ ụ ộ ứ ả ệ
áp trên cu n quay v NC b thay đi ph thu c vào s thay đi t i cu m t trongộ ề ị ổ ụ ộ ự ổ ả ả ộ
các đng đi n áp ra, nh đó nó ph n nh đc khá chính xác s thay đi c a đi nườ ệ ờ ả ả ượ ự ổ ủ ệ
áp ra đ tác đng vào chân 2 nh m t đng đi u ch nh l i t t c các đi n áp raể ộ ằ ự ộ ề ỉ ạ ấ ả ệ
thông qua vi c đi u ch nh Đ r ng Xung PWM c a xung đi u khi n tác đng vàoệ ề ỉ ộ ộ ủ ề ể ộ
c c G c a Transistor Tr ng Qự ủ ườ 1.
Chú ý 3: Vì m ch trên đây t đng đi u ch nh đi n áp ra theo nguyên lý soạ ự ộ ề ỉ ệ
sánh th đngụ ộ (t c là không so sánh tr c ti p đi n áp ra mà ch so sánh đi n ápứ ự ế ệ ỉ ệ
quay v )ề nên s bi n thiên c a đi n áp quay v theo cùng m t t l so v i s bi nự ế ủ ệ ề ộ ỷ ệ ớ ự ế
thiên c a đi n áp ra.ủ ệ
Tuy nhiên, trên th c t , các đng ra có T l c ngu n khác nhau thì th i gianự ế ườ ụ ọ ồ ờ
phóng x khác nhau nên s t o ra s thay đi khác nhau v đ tăng gi m đi n áp.ả ẽ ạ ự ổ ề ộ ả ệ
C th là n u đng ngu n ra nào có T l c ngu n càng l n thì đ thay đi đi nụ ể ế ườ ồ ụ ọ ồ ớ ộ ổ ệ
áp c a nó càng ít, ng c l i n u đng đi n áp ra nào s d ng T l c ngu n càngủ ượ ạ ế ườ ệ ử ụ ụ ọ ồ
bé thì s thay đi đi n áp c a nó càng l n.ự ổ ệ ủ ớ
Chính vì v y, đ m ch nói trên có th ‘bám’ theo s thay đi c a các đi n ápậ ể ạ ể ự ổ ủ ệ
ra càng chính xác thì h ng s th i gian t b i m ch l c ngu n do T Cằ ố ờ ọ ở ạ ọ ồ ụ 4 và Đi n trệ ở
R9 ph i theo đúng h ng s Th i gian đc t o b i các T l c ngu n c a cácả ằ ố ờ ượ ạ ở ụ ọ ồ ủ
đng đi n áp ra khác v i các T i t ng ng.ườ ệ ớ ả ươ ứ
Trên th c t , nên l a ch n Cự ế ự ọ 2 = C4 = 22 ÷ 47mF và R9 = 68 ÷ 470W.
Theo lý lu n nói trên: N u ch n Cậ ế ọ 2 và C4 quá l n thì h ng s th i gian soớ ằ ố ờ
sánh quá dài (t c là đi n áp quay v càng n đnh do T Cứ ệ ề ổ ị ụ 2 và C4 phóng quá
ch m)ậ trong lúc T i ra quá l n làm cho đi n áp ra thay đi ng n h n và nhanh h nả ớ ệ ổ ắ ơ ơ
nên tác đng đi u ch nh đi n áp thông qua s so sánh đi n áp quay v luôn b ch mộ ề ỉ ệ ự ệ ề ị ậ
nên đi n áp ra s m t n đnh.ệ ẽ ấ ổ ị

Ng c l i n u ch n Cượ ạ ế ọ 2 và C4 quá bé thì s thay đi đi n áp quay v quáự ổ ệ ề
nhanh do th i gian phóng x đi n c a các T quá ng n s khi n cho m ch so sánhờ ả ệ ủ ụ ắ ẽ ế ạ
liên t c ho t đng cũng s làm cho đi n áp ra liên t c b đi u ch nh nên cũng sụ ạ ộ ẽ ệ ụ ị ề ỉ ẽ
không n đnh.ổ ị
T ng t , n u ch n Rươ ự ế ọ 9 quá bé thì (thì cũng gi ng nh ch n Cố ư ọ 2 và C4 quá
nh )ỏ s làm cho đi n áp ra liên t c b đi u ch nh nên đi n áp ra cũng s kém nẽ ệ ụ ị ề ỉ ệ ẽ ổ
đnh đng th i tiêu hao dòng đi n qua Rị ồ ờ ệ 9 s càng l n s làm t n Công su t Ngu nẽ ớ ẽ ố ấ ồ
khi n Hi u su t Ngu n b suy gi m vì t n công vô ích trên Rế ệ ấ ồ ị ả ố 9. Ng c l i n u Rượ ạ ế 9
quá l n thì gi m đc tiêu hao ngu n vô ích nh ng s duy trì đi n áp quay v trongớ ả ượ ồ ư ẽ ệ ề
th i gian dài h n nên s khi n cho m ch so sánh tác đng ch m và không k p đi uờ ơ ẽ ế ạ ộ ậ ị ề
ch nh đi n áp ra k p th i so v i s suy gi m c a đi n áp ra.ỉ ệ ị ờ ớ ự ả ủ ệ
Chú ý 4: Đi u đc bi t c a Ngu n Switching là ch v i b t k Bi n ápề ặ ệ ủ ồ ở ỗ ớ ấ ỳ ế
Công su t Ngu nấ ồ (b ng lõi b t Ferrit)ằ ộ có kích th c nh th nào thì s vòng dâyướ ư ế ố
c a các cu n không ph thu c vào Kích th c c a Bi n áp gi ng nh khi cu n cácủ ộ ụ ộ ướ ủ ế ố ư ố
Bi n áp 50Hz thông th ng mà các cu n dây c a Bi n áp Công su t luôn đcế ườ ộ ủ ế ấ ượ
cu n theo chu n – kinh nghi m nh d i đâyố ẩ ệ ư ướ (s khác nhau v kích th c c aự ề ướ ủ
Bi n áp Công su t ch nh h ng Công su t cho T i khác nhau sao cho n u Kíchế ấ ỉ ả ưở ấ ả ế
th c Bi n áp càng l n thì Công su t t i đa cho T i càng l n, ng c l i n u Kíchướ ế ớ ấ ố ả ớ ượ ạ ế
th c Bi n áp càng nh thì kh năng cung c p Công su t đa cho T i càng nh )ướ ế ỏ ả ấ ấ ả ỏ :
Cu n NộP (m t đu n i v i c c D c a Transistor Tr ng và đu kia n i v iộ ầ ố ớ ự ủ ườ ầ ố ớ
c c d ng c a Bự ươ ủ + - ngu n c p chính đc ch nh l u t đi n áp l i)ồ ấ ượ ỉ ư ừ ệ ướ luôn đcượ
cu nố 45 vòng (không ph thu c vào d i đi n áp vào trong kho ng 40VAC đnụ ộ ả ệ ả ế
380VAC);
Cu n quay v NCộ ề (cung c p đi n áp quay v cho UC3842 và đ so sánh đi nấ ệ ề ể ệ
áp ra th đng)ụ ộ đc cu n theo chu n là 6 vòngượ ố ẩ (không ph thu c vào kích th cụ ộ ướ
c a Bi n áp cũng nh đi n áp vào và ra…)ủ ế ư ệ : N u cu n cu n NC quá 6 vòng thì đi nế ố ộ ệ
áp ra s b gi m t l Volt/Vòng và n u s vòng quá nhi u thì m ch s b ‘ngh n’ẽ ị ả ỷ ệ ế ố ề ạ ẽ ị ẹ
không dao đng đc liên t c mà s có ti ng rít Bi n áp Công su t đng th iộ ượ ụ ẽ ế ở ế ấ ồ ờ
đi n áp ra không n đnh.ệ ổ ị
N u cu n NC đc cu n ít h n 6 vòng thì t l Volt/Vòng đi v i các đi nế ộ ượ ố ơ ỷ ệ ố ớ ệ
áp ra s tăng lên và s có th d n đn nguy c quá t i cho Bi n áp Công su t vàẽ ẽ ể ẫ ế ơ ả ế ấ
Transistor Tr ng.ườ
Trong tr ng h p cu n NC đc cu n đúng 6 vòng thì t l Volt/Vòng là 2,5ườ ợ ộ ượ ố ỷ ệ
÷ 3Volt/Vòng đi v i các đng đi n áp ra. Ví d , mu n t o ra đi n áp ra 12V thìố ớ ườ ệ ụ ố ạ ệ
ch c n cu n 4 ÷ 5 vòng là đ.ỉ ầ ố ủ
o ng d ng trong các Ngu n SwitchingỨ ụ ồ
UC3842 đc s d ng ph bi n trong các M ch ngu n Switching không điượ ử ụ ổ ế ạ ồ ố
x ngứ (đi n áp ra đn pha và đc ch nh l u n a chu k , không th l y đc c 2ệ ơ ượ ỉ ư ử ỳ ể ấ ượ ả
n a chu k nh đi v i các Ngu n đi x ng s d ng IC TL494)ử ỳ ư ố ớ ồ ố ứ ử ụ .

