
BÀI 11. SƠ ĐỒ ỔN THẾ
A. THIẾT BỊ SỦ DỤNG
1. Thiết bị chính cho thực tập điện tử tương tự ATS - 11 N.
2. Khối thí nghiệm AE - 11 N cho bài thực tập về ổn thế.
3. Dao động kí hai tia
4. Dây nối hai chốt cắm, đồng hồ đo.
B. CÁC BÀI THỰC TẬP
Trong các bài thí nghiệm có sử dụng nguồn chuẩn của thiết bị ATS – 11N và bộ
chỉnh lưu lọc nguồn A11 - 6 trên khối AE - 1 là để so sánh đặc trưng ổn áp...
Hình A11-0: Bộ chỉnh lưu lọc nguồn PS – 1/A11-6
I. SƠ ĐỒ ỔN THẾ ZENER
Nhiệm vụ
Tìm hiểu nguyên tắc làm việc và đặc trưng của bộ ổn thế đơn giản dùng một Zener.
Nguyên lý hoạt động
Khi điện áp đầu vào vượt quá điện áp đánh thủng của điốt Zener D1, điện áp trên
D1 không đổi (8V2). Khi đó làm thông transistor T1, điện áp UBE của T1 ~ 0,7V. Điện áp
ra = UD1 - UBE ~ 8V2 - 0,7 = 7V5 ổn định.
Transistor T1 có tính khuyếch đại dòng điện, tăng công suất của tải.
32

Các bước thực hiện
ٱ1. Cấp nguồn điều chỉnh 0 + 15V của thiết bị chính ATS -11 N cho mảng sơ đồ
A11-1 qua chốt IN/+V
2. Mắc các đồng hồ đo để có thể đo được thế tại +V/IN, tại điểm A và lối ra
OUT/C. Chú ý cắm đúng phân cực cho đồng hồ đo.
3. Khảo sát với mạch ổn áp với nguồn chuẩn
3.1 Vặn biến trở của nguồn điều chỉnh để tăng dần thế +V theo các giá trị ghi trong
bảng A11-1. Đo các giá trị điện thế tương ứng trên Zener cho các trường hợp có nối và
không nối tải J1, J2. Trên cơ sở kết quả đo được vẽ đồ thị biểu diễn sự phụ thuộc thế ra
trục Y theo thế vào trục X. Xác định khoảng thế vào làm việc tốt cho sơ đồ A11 - 1. Xác
định khả năng tải cho sơ đồ
Hình A11-1: Sơ đồ ổn thế Zener
3.2 Nối kênh 1 của dao động kí với lối ra C.
3.3 Đặt nguồn +V (ATS - 11N) ở +12V, nối J1 đo biên độ mấp mô của tín hiệu ra
UR (+V/ATS - 11N), ghi kết quả vào bảng A11-2.
33

+V 8V 9V 10V 11V 12V 13V 14V
Thế trên Zener (điểm A)
Khi không có tải (các J ngắt)
Thế lối ra (điểm C)
Khi không có tải (các J ngắt)
Thế trên Zener
(điểm A) Khi có tải (J1 nối)
Thế lối ra (điểm C)
Khi có tải (J1 nối)
Thế trên Zener (điểm A)
Khi có tải (J2 nối)
Thế lối ra (điểm C)
Khi có tải (J2 nối)
4. Khảo sát mạch ổn áp với bộ chỉnh lưu:
4.1 Nối nguồn AC (0 - ~ 9V) từ nguồn xoay chiều AC của thiết bị chính ATS - 11N
với lối vào AC - IN của sơ đồ chỉnh lưu cầu A11 - 6, để hình thành thế +V, sử dụng cho
các sơ đồ ổn thế.
4.2 Cấp thế +V từ bộ chỉnh lưu A11-6 cho mảng sơ đồ A11-1, thay cho thế lấy từ
thiết bị chính.
4.3 Đo biên độ mấp mô tín hiệu ra khi không có và có UR(A11-6). Ghi kết quả vào
bảng A11 -2
Bảng A11 - 2
Khôn
g
nối J Nối J1
(t
ải R3
)
Nối J2
(
TảiR4
)
UR
(
+V/ATS 11-N
)
UR
(
A11-6
)
So sánh kết quả độ mấp mô khi dùng nguồn +V ổn định của ATS - 11 N và nguồn
từ bộ chỉnh lưu A 11 - 6.
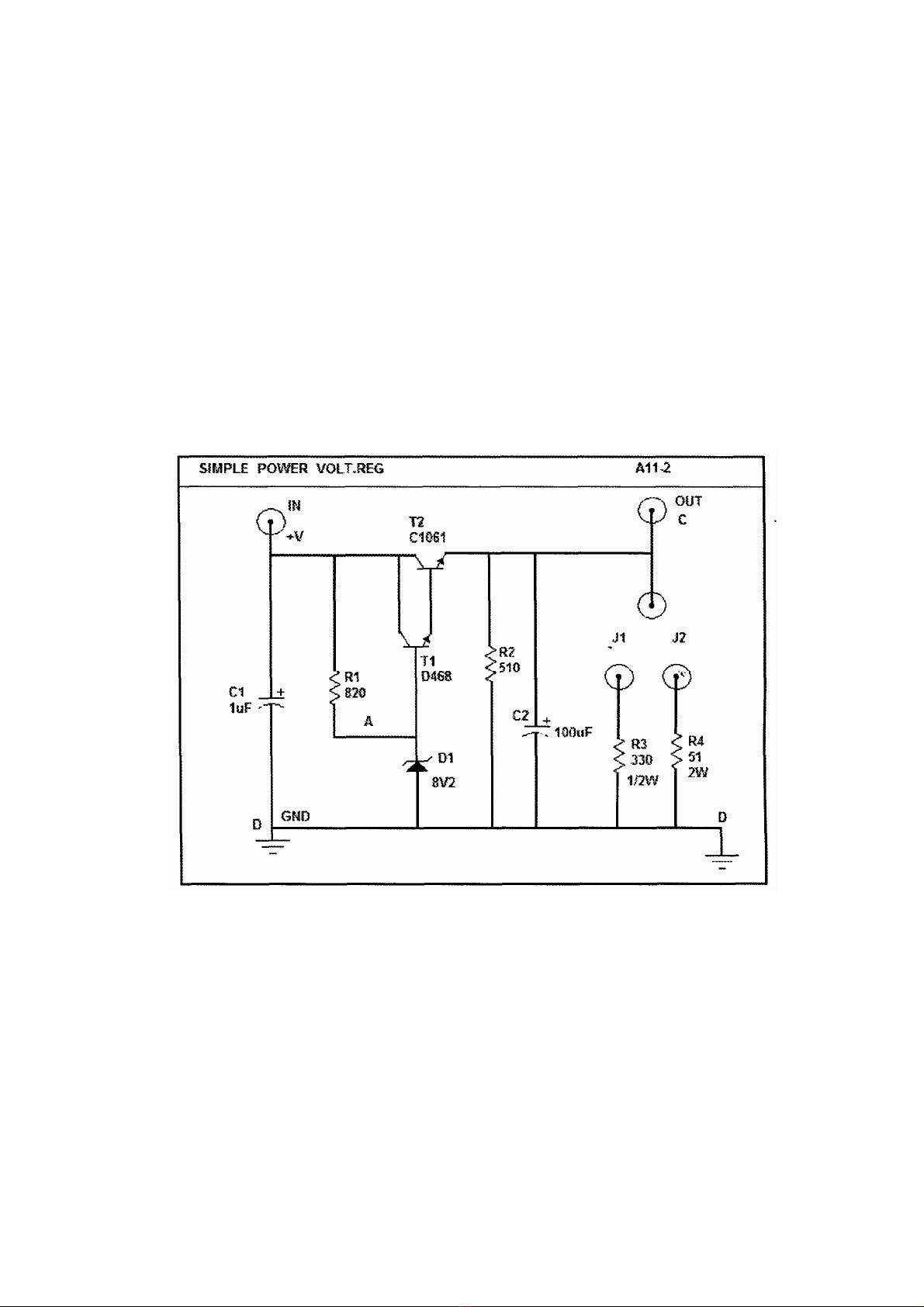
II. BỘ ỔN THẾ CÔNG SUẤT ĐƠN GIẢN
Nhiệm vụ
Tìm hiểu nguyên tắc làm việc và đặc trưng của bộ ổn thế công suất đơn giản dùng
Zener và sơ đồ Darlington.
34

Nguyên lý hoạt động
Khi điện áp đầu vào vượt quá điện áp đánh thủng của một Zener D1, điện áp trên
D1 không đổi (8V2). Khi đó làm thông transistor T1 và T2, điện áp chênh lệch giữa B
của T1 với E của T2 ~ 0,7V + 0,7V = 1,4V. Điện áp ra: UD1 - UBE ~ 8V2 – 1,4 = 6V8.
Khi điện áp đầu vào thay đổi thì điện áp tại đầu ra không thay đổi.s
Transistor T1 và T2 mắc theo kiểu Darlington có chức năng khuyếch đại dòng điện,
tăng công suất của tải.
Các bước thực hiện
1. Cấp nguồn điều chỉnh 0- + 15V cho mảng sơ đồ A11 -2 qua chốt IN/+V.
1.1 Mắc các đồng hồ đo để đo thế lối vào +V/IN và thế lối ra OUT của mạch hình
A11-2.
HìnhA11 -2: Sơ đồ ổn thế công suất đơn giản
2. Khảo sát mạch ổn áp với nguồn chuẩn
2.1 Vặn biến trở của nguồn điều chỉnh để thay đổi thế +V theo các giá trị cho trong
bảng A11-3. Đo các giá trị điện thế tương ứng trên Zener cho các trường hợp có tải và
không có tải J1, J2. Trên cơ sở kết quả đo được vẽ đồ thị biểu diễn sự phụ thuộc thế ra
trục Y theo thế vào trục X. Xác định khoảng thế vào làm việc tốt cho sơ đồ xác định khả
năng tải cho sơ đồ.
2.2 Nối kênh 1 của đao động kí với tôi ra C.
2.3 Đặt nguồn +V (ATS - 11N) ở +12V, nối J1 đo biên độ mấp mô của tín hiệu ra
35

(UR ( +V/ATS - 11 N), ghi kết quả vào bảng A11-4.
3. Khảo sát mạch ổn áp với bộ chỉnh lưu:
3.1 Cấp nguồn +V cho mảng sơ đồ A 11 -2. Từ bộ chỉnh lưu A 11 -6, thay cho thế
lấy từ thiết bị chính.
3.2 Đo biên độ mấp mô của tín hiệu ra khi không cổ tải và có tải UR (A11- 6). Ghi
kết quả vào bảng A 11 -4.
So sánh kết quả mấp mô khi dùng nguồn +V ổn định của ATS - 11 N và nguồn từ
sơ đồ chỉnh lưu A11-6.
III. SƠ ĐỔ ỔN THẾ TRANZITOR
Nhiệm vụ
Tìm hiểu nguyên tắc làm việc và đặc trưng của bộ ổn thế trên tranzitor.
Nguyên lý hoạt động
Đây là mạch điện ổn áp nối tiếp.
Giả thiết U vào giảm, tức thời Ura giảm, dẫn đến điện áp hồi tiếp đưa vào cực B của
transistor T1 giảm, điện áp UBE của T1 giảm (do UE cố định nhờ điốt ổn áp Zener), dẫn
đến dòng IC của T1 giảm, điện áp trên collectơ của T1 tăng, mở mạch khuyếch đại
Darlington (gồm T2 và T3), tăng dòng IE của T3 làm UCET3 (Udc) giảm.
Ta có:
U ra = Uvào - Udc
Nếu gia số của Uvào và Udc bằng nhau thì Ura = const.
Mạch còn có tác dụng chống quá tải. Khi trở tải giảm xuống, dòng It tăng, qua điốt
D2 làm mở T4 dẫn tới dòng IB đưa vào transistor T2 giảm, dòng emitơ của T3 cũng giảm
đi, dòng tải It giảm đi. Do đó bảo vệ phần tử điều chỉnh T3 khi lối ra của bộ ổn áp bị đoản
mạch.
Các bước thực hiện
1. Cấp nguồn 0 → + 1 5V cho mảng cơ đồ hình A11 -3 qua chết INI+V.
2. Mắc các đồng hồ đo để đo thế lối vào tại chân +V/IN và thế lối ra tại chân OUT.
3. Khảo sát mạch ổn áp với nguồn chuẩn.
3.1 Vặn biến trở của nguồn điều chỉnh để thay đổi thế +V theo các giá trị cho trong
bảng A11-5. Đo các giá trị điện thế lối ra cho các trường hợp có tải và không có tải J1,
J2. Trên cơ sở kết quả đo được vẽ đồ thị biểu diễn sự phụ thuộc thế ra trục Y theo thế vào
trục X. Xác định khoảng thế vào làm việc tốt cho sơ đồ xác định khả năng tải cho sơ đồ.
36

