
B QU C PHÒNGỘ Ố
H C VI N K THU T QUÂN SỌ Ệ Ỹ Ậ Ự
NGÂN HÀNG CÂU H I VÀ Đ THI B MÔN DUNG SAI VÀ L P GHÉPỎ Ề Ộ Ắ
Câu 1:
Đ bài:ề
Cho m i ghép gi a l và tr c, bi t kích th c danh nghĩa là ố ữ ỗ ụ ế ướ 24; Nmax= 0,020;
Smax= 0,144; Td = 0,063; l p ghép theo h th ng l .ắ ệ ố ỗ
- Xác đnh các kích th c gi i h n, sai l ch gi i h n.ị ướ ớ ạ ệ ớ ạ
- Ki u l p ghép và các đc tính l p ghép còn l i c a m i ghép. ể ắ ặ ắ ạ ủ ố
- Hãy v s đ phân b mi n dung sai. ẽ ơ ồ ố ề
- Ghi các yêu c u k thu t trên lên b n v ch t o và b n v l pầ ỹ ậ ả ẽ ế ạ ả ẽ ắ .
Đáp án:
TD + Td = TNS = Nmax + Smax
TD = (Nmax + Smax ) - Td = 0,101
Do l p ghép theo h th ng l , EI = 0ắ ệ ố ỗ
ES = EI + TD = 0,101
es = Nmax + EI = 0,020
ei = ES - Smax = - 0,043
Dmax = D + ES = 24,101
Dmin = D + EI = 24
dmax = d + es = 24,020
dmin = d + ei = 23,957
Do Smax > 0, Nmax > 0 nên đây là ki u l p trung gian.ể ắ
Các đc tính còn l i c a m i l p là:ặ ạ ủ ố ắ
TNS = Nmax + Smax = 0,164
S đ phân b mi n dung sai c a m i ghép nh sau:ơ ồ ố ề ủ ố ư
1

Các yêu c u k thu t đc ghi trên b n v ch t o và b n v l p nh sau: ầ ỹ ậ ượ ả ẽ ế ạ ả ẽ ắ ư 1
Câu 2:
Đ bài:ề
Cho m i ghép gi a l và tr c, bi t kích th c danh nghĩa là ố ữ ỗ ụ ế ướ 30; Nmax= 0,110;
Nmin= 0,025; TD = 0,052; l p ghép theo h th ng l .ắ ệ ố ỗ
- Xác đnh các kích th c gi i h n, sai l ch gi i h n.ị ướ ớ ạ ệ ớ ạ
- Ki u l p ghép và các đc tính l p ghép còn l i c a m i ghép. ể ắ ặ ắ ạ ủ ố
- Hãy v s đ phân b mi n dung sai. ẽ ơ ồ ố ề
- Ghi các yêu c u k thu t trên lên b n v ch t o và b n v l pầ ỹ ậ ả ẽ ế ạ ả ẽ ắ .
Đáp án:
Do l p ghép theo h th ng l , EI = 0ắ ệ ố ỗ
ES = EI + TD = 0,052
es = Nmax + EI = 0,110
ei = Nmin + ES = 0,077
Dmax = D + ES = 30,052
2

Dmin = D + EI = 30
dmax = d + es = 30,110
dmin = d + ei = 30,077
Do Nmin > 0 nên đây là ki u l p có đ dôi.ể ắ ộ
Các đc tính còn l i c a m i l p là:ặ ạ ủ ố ắ
TN = Nmax - Nmin = 0,085
Ntb =
2
minmax NN
= 0,068
S đ phân b mi n dung sai c a m i ghép nh sau: ơ ồ ố ề ủ ố ư 2
Các yêu c u k thu t đc ghi trên b n v ch t o và b n v l p nh sau:ầ ỹ ậ ượ ả ẽ ế ạ ả ẽ ắ ư
Câu 3:
Đ bài:ề
Cho m i ghép gi a l và tr c, bi t kích th c danh nghĩa là ố ữ ỗ ụ ế ướ 50; Smax= 0,89; Smin=
0,025; TD = 0,39; l p ghép theo h th ng tr c.ắ ệ ố ụ
- Xác đnh các kích th c gi i h n, sai l ch gi i h n.ị ướ ớ ạ ệ ớ ạ
- Ki u l p ghép và các đc tính l p ghép còn l i c a m i ghép. ể ắ ặ ắ ạ ủ ố
3

- Hãy v s đ phân b mi n dung sai. ẽ ơ ồ ố ề
- Ghi các yêu c u k thu t trên lên b n v ch t o và b n v l pầ ỹ ậ ả ẽ ế ạ ả ẽ ắ .
Đáp án:
Do l p ghép theo h th ng tr c, es = 0ắ ệ ố ụ
EI = Smin + es = 0,025
ES = EI + TD = 0,415
ei = ES - Smax = - 0,475
Dmax = D + ES = 50,415
Dmin = D + EI = 50,025
dmax = d + es = 50
dmin = d + ei = 49,525 3
Do Smin > 0 nên đây là ki u l p có đ h .ể ắ ộ ở
Các đc tính còn l i c a m i l p là:ặ ạ ủ ố ắ
TS = Smax - Smin = 0,865
Stb =
2
minmax SS
= 0,458
S đ phân b mi n dung sai c a m i ghép nh sau:ơ ồ ố ề ủ ố ư
Các yêu c u k thu t đc ghi trên b n v ch t o và b n v l p nh sau:ầ ỹ ậ ượ ả ẽ ế ạ ả ẽ ắ ư
Câu 4:
4

Đ bài:ề
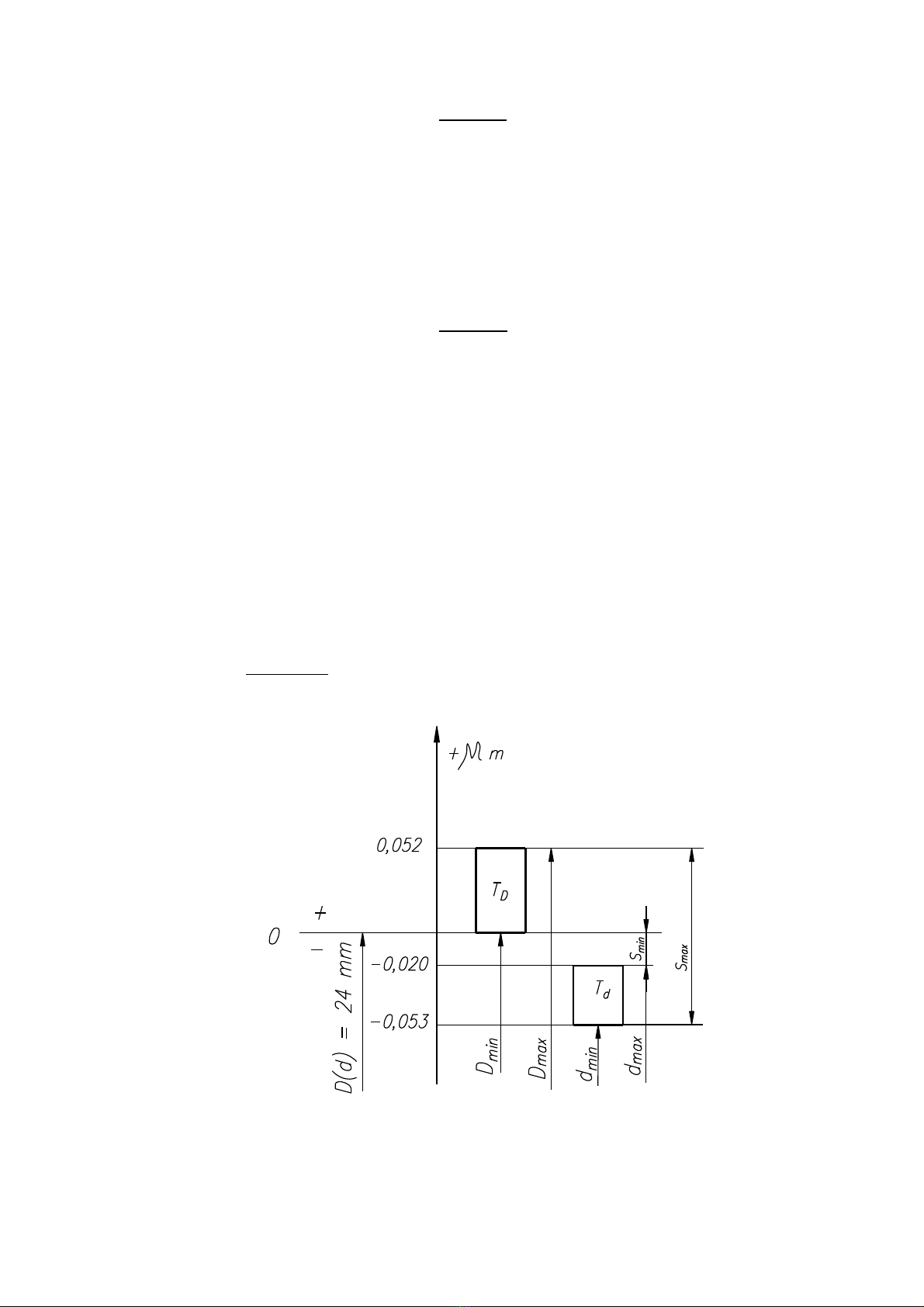
Cho m i ghép gi a l và tr c, bi t kích th c danh nghĩa là ố ữ ỗ ụ ế ướ 24; Smin= 0,020; TD
= 0,052; Td = 0,033; l p ghép theo h th ng l .ắ ệ ố ỗ
- Xác đnh các kích th c gi i h n, sai l ch gi i h n.ị ướ ớ ạ ệ ớ ạ
- Ki u l p ghép và các đc tính l p ghép còn l i c a m i ghép. ể ắ ặ ắ ạ ủ ố
- Hãy v s đ phân b mi n dung sai. ẽ ơ ồ ố ề
- Ghi các yêu c u k thu t trên lên b n v ch t o và b n v l pầ ỹ ậ ả ẽ ế ạ ả ẽ ắ .
Đáp án:
Do l p ghép theo h th ng l , EI = 0ắ ệ ố ỗ
ES = EI + TD =0,052
es = EI – Smin = -0,020 4
ei = es –Td = -0,053
Dmax = D + ES = 24,052
Dmin = D + EI = 24
dmax = d + es = 23,980
dmin = d + ei = 23,947
Do Smin > 0 nên đây là ki u l p có đ h .ể ắ ộ ở
Các đc tính còn l i c a m i l p là:ặ ạ ủ ố ắ
Smax = ES – ei = 0,105
TS = Smax - Smin = 0,085
Stb =
2
minmax SS
= 0,063
S đ phân b mi n dung sai c a m i ghép nh sau:ơ ồ ố ề ủ ố ư
Các yêu c u k thu t đc ghi trên b n v ch t o và b n v l p nh sau:ầ ỹ ậ ượ ả ẽ ế ạ ả ẽ ắ ư
5

