
Tài li u h ng d n th c t p ệ ướ ẫ ự ậ Đi n Công Nghi pệ ệ
BÀI 8
Đ U N I VÀ V N HÀNH M CH ĐI N MÁY MÀI BPH20Ấ Ố Ậ Ạ Ệ
I. M C ĐÍCH THÍ NGHI MỤ Ệ
-Tìm hi u các khí c đi n trang b cho m ch đi n.ể ụ ệ ị ạ ệ
-Kh năng đ u n i m ch đi n c th trên máy công nghi pả ấ ố ạ ệ ụ ể ệ
- Kh năng đ c nguyên lý m t m ch đi n trang b trên máy công nghi p.ả ọ ộ ạ ệ ị ệ
- Kh năng v n hành m t m ch đi n trang b trên máy công nghi p ả ậ ộ ạ ệ ị ệ
- Kh năng x lý m t s s c c a m ch đi nả ử ộ ố ự ố ủ ạ ệ
- Kh năng đo đ t các thông s làm vi c c a m ch đi nả ạ ố ệ ủ ạ ệ
II. Đ C ĐI M LÀM VI C C A MÁY MÀI BPH-20Ặ Ể Ệ Ủ
-Máy mài ph ng có 2 lo i: mài b ng biên đá và m t đ u. Chi ti t đ c k pẳ ạ ằ ặ ầ ế ượ ẹ
ch t trên bàn máy tròn ho c hình ch nh t.ặ ặ ữ ậ
- máy mài biên đá, đá mài quay tròn và chuy n đ ng t nh ti n ngang so v iỞ ể ộ ị ế ớ
chi ti t, bàn máy mang chi ti t chuy n đ ng t nh ti n qua l i. Chuy n đ ngế ế ể ộ ị ế ạ ể ộ
quay c a đá là chuy n đ ng chính, chuy n đ ng ăn dao là di chuy n c a đáủ ể ộ ể ộ ể ủ
(ăn dao ngang) ho c chuy n đ ng c a c a ti t (ăn dao d c).ặ ể ộ ủ ủ ế ọ
- máy mài b ng m t đ u đá, bàn có th tròn ho c hình ch nh t, chuy nỞ ằ ặ ầ ể ặ ữ ậ ể
đ ng quay c a đá là chuy n đ ng chính, chuy n đ ng ăn dao là chuy nộ ủ ể ộ ể ộ ể
đ ng ngang c a đá (ăn dao ngang) ho c chuy n đ ng t nh ti n qua l i c aộ ủ ặ ể ộ ị ế ạ ủ
bàn mang chi ti t (ăn dao d c).ế ọ
- Truy n đ ng chính trong ph n l n các máy mài không yêu c u đi u ch nhề ộ ầ ớ ầ ề ỉ
t c đ , nên th ng s d ng đ ng c không đ ng b ba pha roto l ng sócố ộ ườ ử ụ ộ ơ ồ ộ ồ
đ truy n đ ng.ể ề ộ
- Truy n đ ng quay chi ti t (ăn dao d c) trong máy mài th ng đ c truy nề ộ ế ọ ườ ượ ề
đ ng b i đ ng c không đ ng b m t ho c nhi u c p t c đ ho c đ ngộ ở ộ ơ ồ ộ ộ ặ ề ấ ố ộ ặ ộ
c đi n m t chi u. Truy n đ ng di chuy n ngang (ăn dao ngang) c a đ uơ ệ ộ ề ề ộ ể ủ ầ
mài th ng dùng h th ng th y l c.ườ ệ ố ủ ự
- Truy n đ ng ph trong máy mài và truy n đ ng di chuy n nhanh đ u mài,ề ộ ụ ề ộ ể ầ
b m d u c a h th ng bôi tr n, b m n c c a h th ng làm mát th ngơ ầ ủ ệ ố ơ ơ ướ ủ ệ ố ườ
đ c truy n đ ng b i các đ ng c xoay chi u không đ ng b .ượ ề ộ ở ộ ơ ề ồ ộ
III. TRANG B ĐI N C A M CHỊ Ệ Ủ Ạ
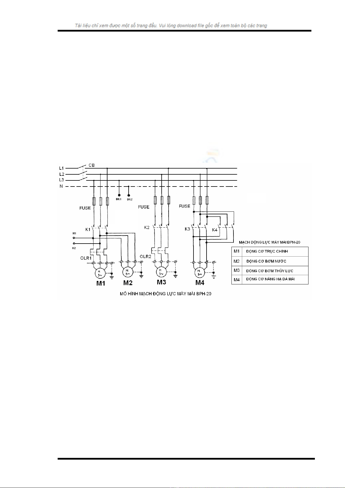
1. Trang b m ch đ ng l c:ị ạ ộ ự
- Đ ng c M1 truy n đ ng quay đá mài lo i AP90S-2, công su t 1,5kW, đi nộ ơ ề ộ ạ ấ ệ
áp 220/380VAC, t c đ 2800 vòng/phút.ố ộ
- Đ ng c M2 truy n đ ng b m n c làm mát lo i AP63-2, công su tộ ơ ề ộ ơ ướ ạ ấ
0,25kW, đi n áp 220/380VAC, t c đ 2770 vòng/phút.ệ ố ộ
- Đ ng c M3 truy n đ ng b m th y l c đ di chuy n mang chi ti t màiộ ơ ề ộ ơ ủ ự ể ể ế
lo i AF322-4, công su t 1,5kW, đi n áp 220/380VAC, t c đ 1400ạ ấ ệ ố ộ
vòng/phút.
-Đ ng c M4 nâng h đá mài lo i 2AP71-2, công su t 0,37kW, đi n ápộ ơ ạ ạ ấ ệ
220/380VAC, t c đ 2770 vòng/phút.ố ộ
2. Trang b m ch đi u khi n:ị ạ ề ể
B môn K thu t Đi n – Đ i h c C n Thộ ỹ ậ ệ ạ ọ ầ ơ
55
Trang

Tài li u h ng d n th c t p ệ ướ ẫ ự ậ Đi n Công Nghi pệ ệ
-K1: công t c t đ ng c tr c chính ắ ơ ộ ơ ụ
-K2: công t c t đ ng c b m n c, K3, K4: công t c t đ ng c nâng hắ ơ ộ ơ ơ ướ ắ ơ ộ ơ ạ
đá mài, K5: công t c t hãm đ ng c tr c chính ắ ơ ộ ơ ụ
- T1: r le th i gianờ ờ
-OLR1, OLR2: r le nhi t b o v quá t iờ ệ ả ệ ả
-Đ1: đèn chi u sáng khi làm vi c, Đ2: đèn báo ngu n ế ệ ồ
-ON1, ON2, ON3, ON4: nút n đ n th ng m dùng đ m máyấ ơ ườ ở ể ở
-OFF1: nút n hai t ng ti p đi m dùng đ t t máy và hãm đ ng c , OFF2:ấ ầ ế ể ể ắ ộ ơ
nút n đ n th ng đóng dùng đ t t máyấ ơ ườ ể ắ
- LS1, LS2: ti p đi m th ng đóng c a công t c hành trình LS1 và LS2ế ể ườ ủ ắ
-CT: công t c, CB: áptômát t ng, FUSE: c u chìắ ổ ầ
3. S đ m ch đi n máy mài BPH-20ơ ồ ạ ệ
a) S đ m ch đ ng l cơ ồ ạ ộ ự
b) S đ m ch đi u khi nơ ồ ạ ề ể
B môn K thu t Đi n – Đ i h c C n Thộ ỹ ậ ệ ạ ọ ầ ơ
56
Trang

Tài li u h ng d n th c t p ệ ướ ẫ ự ậ Đi n Công Nghi pệ ệ
IV. N I DUNG TH C HÀNHỘ Ự
1. Đ u n i m ch đi n máy mài BPH20ấ ố ạ ệ
-Sinh viên đ u n i m ch đi u khi n và m ch đ ng l c máy mài BPH20 theoấ ố ạ ề ể ạ ộ ự
s đ hình v trên d a trên nh ng khí c đi n đã đ c l p đ t trên b ngơ ồ ẽ ự ữ ụ ệ ượ ắ ặ ả
đi n.ệ
-M ch đi u khi n s d ng ngu n xoay chi u 220V thông qua CB 3 pha ạ ề ể ử ụ ồ ề ở
m ch đ ng l c.ạ ộ ự
-Đ ng c trang b cho m ch đ c đ u ch đ sao.ộ ơ ị ạ ượ ấ ở ế ộ
-Đ u n i máy bi n áp và b ch nh l u m t chi u vào ngu n xoay chi uấ ố ế ộ ỉ ư ộ ề ồ ề
220V và c p ngu n m t chi u 24VDC đ hãm đ ng c M1.ấ ồ ộ ề ể ộ ơ
-Ki m tra l i m ch b ng Ohm k .ể ạ ạ ằ ế
2. V n hành m ch đi n máy mài BPH20ậ ạ ệ
-B t áptômát ngu n chính CB lên v trí ON ậ ồ ị → đèn Đ2 sáng.
- Ch nh th i gian tác đ ng trên r le th i gian T1 (kho n 3 giây)ỉ ờ ộ ờ ờ ả
-n nút n ON1 Ấ ấ → đ ng c M1 ho t đ ng, đ ng c M2 ho t đ ng.ộ ơ ạ ộ ộ ơ ạ ộ
-n nút n ON2 Ấ ấ → đ ng c M3 ho t đ ng.ộ ơ ạ ộ
-n nút n ON3 Ấ ấ → đ ng c M4 ho t đ ng.ộ ơ ạ ộ
-n vào c n tác đ ng c a công t c hành trình LS1 Ấ ầ ộ ủ ắ → đ ng c M4 ng ngộ ơ ừ
ho t đ ng.ạ ộ
-n nút n ON4 Ấ ấ → đ ng c M4 ho t đ ng.ộ ơ ạ ộ
-n vào c n tác đ ng c a công t c hành trình LS2 Ấ ầ ộ ủ ắ → đ ng c M4 ng ngộ ơ ừ
ho t đ ng.ạ ộ
-B t công t c CT v v trí ON (n u c n) ậ ắ ề ị ế ầ → Đ1 sáng.
- Dùng VOM (đo áp) và ampe ki m (đo dòng) c a các đ ng c khi làm vi c,ề ủ ộ ơ ệ
ghi vào b ng sau:ả
Đ i l ng đoạ ượ M1 M2 M3 M4
Up (V)
Ilv (A)
-n nút n OFF2 Ấ ấ → ng ng đ ng c M3.ừ ộ ơ
B môn K thu t Đi n – Đ i h c C n Thộ ỹ ậ ệ ạ ọ ầ ơ
57
Trang

Tài li u h ng d n th c t p ệ ướ ẫ ự ậ Đi n Công Nghi pệ ệ
-n nút n OFF1 Ấ ấ → ng ng đ ng c M1, ng ng đ ng c M2 và đ ng c M1ừ ộ ơ ừ ộ ơ ộ ơ
đ c hãm đ ng năng.ượ ộ
-Đ k t thúc bài thí nghi m, ph i d ng máy, ng t ngu n b ng áptômát t ngể ế ệ ả ừ ắ ồ ằ ổ
CB và tháo các dây n i.ố
2. Đ c nguyên lý m ch đi n máy mài ọ ạ ệ BPH20
-D a vào s đ m ch đi n và quá trình v n hành m ch đ c l i nguyên lýự ơ ồ ạ ệ ậ ạ ọ ạ
chính xác m ch đi n máy mài BPH-20ạ ệ
V. BÁO CÁO TH C HÀNH Ự
-Trang b đi n m ch đi n máy mài BPH-20ị ệ ạ ệ
-Báo cáo tr ng thái tác đ ng khi v n hành m ch đi n máy mài BPH-20ạ ộ ậ ạ ệ
Th t tácứ ự
đ ngộTr ng thái làm vi c c a khí cạ ệ ủ ụ Tr ng thái làm vi c c a đ ngạ ệ ủ ộ
c và đèn báoơ
K1 K2 K3 K4 K5 T1 M1 M2 M3 M4 Đ1 Đ2
B t CBậ
n ON1Ấ
n ON2Ấ
n ON3Ấ
n LS1Ấ
n ON4Ấ
n LS2Ấ
B t CTậ
n OFF2Ấ
n OFF1Ấ
- Báo cáo các giá tr đo đ t khi v n hành m ch đi nị ạ ậ ạ ệ
Đ i l ng đoạ ượ M1 M2 M3 M4
Up (V)
Ilv (A)
-Ghi l i nguyên lý ho t đ ng c a m ch đi n máy mài BPH-20ạ ạ ộ ủ ạ ệ
VI. CÂU H IỎ
-Sinh viên hãy đ c l i trình t v n hành máy mài BPH-20 khi gia công s nọ ạ ự ậ ả
ph m?ẩ
-Ý nghĩa c a vi c dùng công t c hành trình LS1 và LS2 trong m ch đi nủ ệ ắ ạ ệ
trên?
-Khi m ch đi n đang làm vi c thì đ ng c M1 b s c quá t i, quá trìnhạ ệ ệ ộ ơ ị ự ố ả
ho t đ ng c a m ch đi n trên s nh th nào?ạ ộ ủ ạ ệ ẽ ư ế
-T i sao trên m ch đ ng l c đ ng c M1 và M3 đ c b o v b i các r leạ ạ ộ ự ộ ơ ượ ả ệ ở ờ
nhi t OLR1 và OLR2 còn đ ng c M2 và M4 không đ c b o v ?ệ ộ ơ ượ ả ệ
- T i sao nút n ON3 và ON4 đi u khi n đ ng c M4 không có ti p đi m tạ ấ ề ể ộ ơ ế ể ự
gi ?ữ
- Mái mài BPH-20 có đ c trang b c c u b m d u bôi tr n không? N u có,ượ ị ơ ấ ơ ầ ơ ế
thì nó đ c truy n đ ng b i đ ng c nào?ượ ề ộ ở ộ ơ
B môn K thu t Đi n – Đ i h c C n Thộ ỹ ậ ệ ạ ọ ầ ơ
58
Trang

Tài li u h ng d n th c t p ệ ướ ẫ ự ậ Đi n Công Nghi pệ ệ
- C c u truy n đ ng ăn dao trên máy mài BPH-20 đ c truy n đ ng b iơ ấ ề ộ ượ ề ộ ở
đ ng c nào? Sinh viên hãy trình bày ph ng pháp truy n đ ng trên?ộ ơ ươ ề ộ
B môn K thu t Đi n – Đ i h c C n Thộ ỹ ậ ệ ạ ọ ầ ơ
59
Trang

