
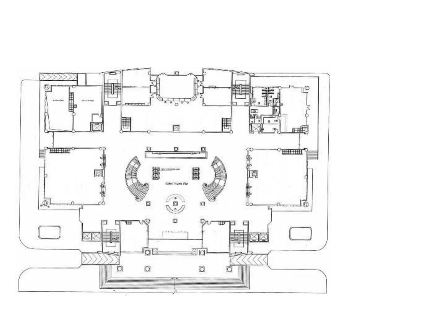
Tầng 1 -Thư viện Đại học Bách Khoa Hà Nội
Phòng
gửi đồ
102: Phòng
mượn sách
tham khảo
111: Phòng mượn
sách giáo trình
124:
Kho tổng
Gồm 02 phòng
mượn sách về nhà :
102: Phòng mượn
sách tham khảo
111: Phòng mượn
sách giáo trình

Tầng 2 -Thư viện Đại học Bách Khoa Hà Nội
Gồm các phòng phục
vụ tại chỗ:
204: Văn phòng
220A: Phòng Thông tin
thư mục
227: Phòng HDSD TV
Văn phòng
211: Kho đóng
213: Ban
Quản trị
tòa nhà
TVTQB
227: Lớp
HDSDTV
228
220A:
Phòng
Thông
tin thư
mục

Tầng 3 -Thư viện Đại học Bách Khoa Hà Nội
302: Phòng
truyền thống
ĐHBKHN
304: Phòng
Luận văn,
luận án
306 313: Phòng multimedia 320
Gồm các phòng phục
vụ tại chỗ:
302: Phòng truyền
thống ĐHBKHN
304: Phòng Luận văn,
luận án + Thư viện
Pháp ngữ - VEFFA
313: Phòng Multimedia

Tầng 4 -Thư viện Đại học Bách Khoa Hà Nội
401: Phòng Xử lý
thông tin
404
411: Phòng đọc
chuyên ngành
Q S
418:
Phòng
tự học
419:
Phòng
tự học
402: Phòng đọc
chuyên ngành
A P
Gồm các phòng
phục vụ tại chỗ:
401: Phòng Xử lý
thông tin
402: Phòng đọc
chuyên ngành A P
404: Phòng đọc Báo –
Tạp chí
411: Phòng đọc
chuyên ngành Q S
418, 419: Phòng tự
học

Tầng 5-Thư viện Đại học Bách Khoa Hà Nội
509: Phòng đọc
chuyên ngành
T TJ
518
511
525:
Phòng
tự học
526:
:
Phòng
đọc
chuyê
n
ngành
TK
Z
Gồm các phòng
phục vụ tại chỗ:
509: Phòng đọc
chuyên ngành T TJ
526: Phòng đọc
chuyên ngành TK Z

