
SVTH: Tr n Văn CaoầGVHD: Hoàng Văn B oạ
SHSV:20100074
Đ 1ề
B N THUY T MINH Đ ÁN MÔN H C CHI TI T MÁYẢ Ế Ồ Ọ Ế
TÍNH TOÁN THI T K H D N Đ NG XÍCH T IẾ Ế Ệ Ẫ Ộ Ả
--------------------------
ĐÊ 1/3
-----------
D . THI T K TR C, LĂN VÀ KH P N I:Ế Ế Ụ Ổ Ớ Ố
I. Tính ch n kh p n i:ọ ớ ố
Thông s đ u vào:ố ầ
1. Mô men c n truy n: T=Tầ ề đc=54718(N.mm)
2. Đ ng kính tr c đ ng c : dườ ụ ộ ơ đc=38(mm)
Ch n kh p n i:ọ ớ ố
Ta s d ng kh p n i vòng đàn h i đ n i tr cử ụ ớ ố ồ ể ố ụ
Ch n kh p n i theo đi u ki n:ọ ớ ố ề ệ
Trong đó :
dt – Đ ng kính tr c c u n i: dườ ụ ầ ố t=dđc=38(mm)
Tt – Mô men xo n tính toán:ắ
Tt=kT, v i:ớ
k – H s ch đ làm vi c, ph thu c lo i máy, tra b ng B16,1/58[2] &ệ ố ế ộ ệ ụ ộ ạ ả
k=1,22 ch n k=1,3ọ
T – Mô men xo n danh nghĩa trên tr c:ắ ụ
T=Tđc=58914,60(N.mm)
Tt=kT=76,589(N.mm)
Tra b ng 16.10a/tr65.t2 v i đk ả ớ
Ta đ c các thông s c a kh p n i nh sau:ượ ố ủ ớ ố ư
Tra b ng 16.10b/tr69 v i ta đ c:ả ớ ượ
34(mm)
28(mm)
14(mm)
Ki m nghi m kh p n i:ể ệ ớ ố
1. Ki m nghi m đi u ki n s c b n d p c a vòng đàn h i:ể ệ ề ệ ứ ề ậ ủ ồ
, trong đó:
Đ án chi ti t máyồ ế

SVTH: Tr n Văn CaoầGVHD: Hoàng Văn B oạ
SHSV:20100074
Đ 1ề
- ng su t d p cho phép c a vòng cao su. L y 24 MpaỨ ấ ậ ủ ấ
Do v y:ậ
th a mãnỏ
2. Đi u ki n s c b n c a ch t:ề ệ ứ ề ủ ố
- ng su t cho phép c a ch t. L y (6080)MpaỨ ấ ủ ố ấ
th a mãn ỏ
3. L c tác d ng lên tr c:ự ụ ụ
, trong đó:
- l c vòng tác d ng lên tr c đàn h i:ự ụ ụ ồ
⇒ , . = , ( )0 2 1122 224 4 N
4. :Các thông số cơ bản của nối trục vòng đàn hồi
Thông sốKý hi uệGiá trịĐ n vơ ị
Mô men xo n l n nh t có th truy n đ cắ ớ ấ ể ề ượ 250 N.m
Đ ng kính tr c l n nh t có th c a tr c n iườ ụ ớ ấ ể ủ ụ ố 40 mm
S ch tố ố Z 6 Ch tố
Đ ng kính vòng tâm ch tườ ố 105 mm
Chi u dài ph n t đàn h iề ầ ử ồ 28 mm
Chi u dài đo n công xôn c a ch tề ạ ủ ố 34 mm
Đ ng kính c a ch t đàn h iườ ủ ố ồ 14 mm
II. Thi t k tr c:ế ế ụ
1. Ch n v t li u: ọ ậ ệ
Vì công su t đ ng c 8.99kw. T i tr ng trung bình theo bang 10.5/194[1]ấ ộ ơ ả ọ
ta ch n v t li u là thép C45 th ng hóa và tôi c i thi n cho c hai tr c cóọ ậ ệ ườ ả ệ ả ụ
600(Mpa),
ng su t xo ncho phép 15÷30(Mpa)Ứ ấ ắ
2. Xác đ nh l c tác d ng:ị ự ụ
a. S đ các l c tác d ng lên các tr cơ ồ ự ụ ụ
Đ án chi ti t máyồ ế

SVTH: Tr n Văn CaoầGVHD: Hoàng Văn B oạ
SHSV:20100074
Đ 1ề
b. Đ l n c a các tr cộ ớ ủ ụ
•L c tác d ng lên tr c t b truy n xích: ự ụ ụ ừ ộ ề ⇒
•L c tác d ng lên tr c t kh p n i: 224,4(N)ự ụ ụ ừ ớ ố
•L c tác d ng lên b truy n bánh răng: 758(N) l c h ng tâmự ụ ộ ề ự ướ
2083(N) l c vòngự
3. Xác đ nh s b đ ng kính tr c:ị ơ ộ ườ ụ
Ta d a vào công th c th c nghi m sau:ự ứ ự ệ
•V i tr c I đ c n i v i đ ng c lên:ớ ụ ượ ố ớ ộ ơ
ng 20Mpaứ
25(mm)
Tra b ng 10.2/188 ta đ c 17 mmả ượ
•V i tr c II là tr c ra c a h p gi m t c:ớ ụ ụ ủ ộ ả ố
ng 20ứ
41(mm)
Tra b ng 10.2/188 ta đ c 23 mmả ượ
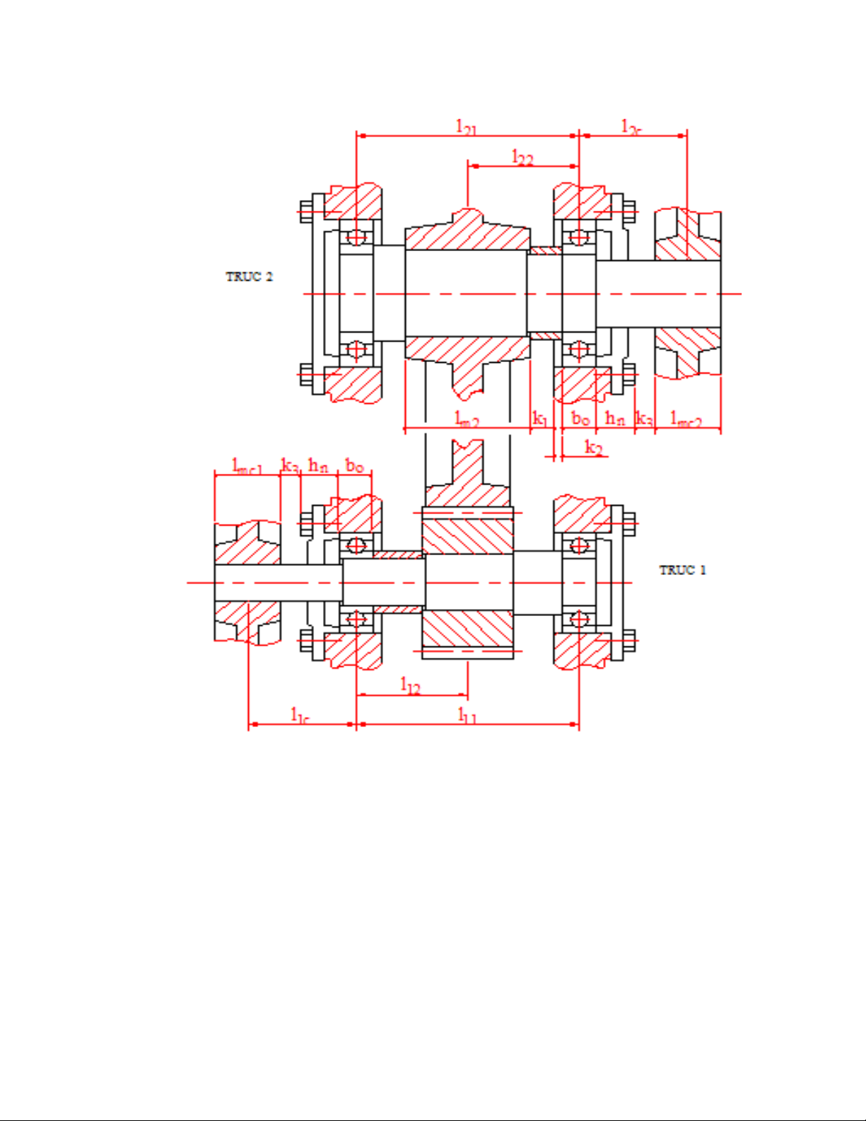
4. Xác đ nh s b kho ng cách gi a các g i đ và đi m đ t l cị ơ ộ ả ữ ố ỡ ể ặ ự
a. Xác đ nh chi u r ng lăn trên tr cị ề ộ ổ ụ
Tra b ng 10.2/tr188 v i:ả ớ
Ta đ c chi u r ng lăn trên tr c: ượ ề ộ ổ ụ
b. Xác d nh kho ng cách:ị ả
Ta có s đ b trí các ph n t trong h d n đ ng:ơ ồ ố ầ ử ệ ẫ ộ
Đ án chi ti t máyồ ế

SVTH: Tr n Văn CaoầGVHD: Hoàng Văn B oạ
SHSV:20100074
Đ 1ề
•Theo công th c 10.10/188[1]. Chi u dài may n a kh p n i:ứ ề ở ử ớ ố
50(mm)
•Chi u dài may l p bánh răngề ơ ắ
35(mm)
50(mm)
•Chi u dài may đĩa xích:ề ơ
Đ án chi ti t máyồ ế

SVTH: Tr n Văn CaoầGVHD: Hoàng Văn B oạ
SHSV:20100074
Đ 1ề
50(mm)
•: Kho ng cách t m t mút chi ti t quay đ n thành trong v h p ả ừ ặ ế ế ỏ ộ
Theo b ng 10.3/188ả
15(mm)
•: Kho ng cách t m t mút đ n thành trong v h p ả ừ ặ ổ ế ỏ ộ
10(mm)
•: Kho ng cách t m t mút chi ti t quay đ n n p ả ừ ặ ế ế ắ ổ
15(mm)
•: Chi u cao l p và đ u bu lông ề ắ ổ ầ
20(mm)
•Ta tính đ c các kho ng chia:ượ ả
68,5(mm)
71,5(mm)
Các lăn 1 và 2 th ng hàngổ ẳ
61,5(mm)
+ T ng chi u dài c a tr cổ ề ủ ụ
191,5(mm)
194,5(mm)
Tính toán thi t k c m tr cế ế ụ ụ
I. Tr c Iụ
1. Ch n đ ng kính s b các đo n tr cọ ườ ơ ộ ạ ụ
a. Tính phân l c t i các g i đự ạ ố ỡ
2083(N)
758(N)
224,4(N)
Ta có các ph ng trình sau ươ
Và
Đ án chi ti t máyồ ế

