
S GD&ĐT QU NG BÌNHỞ Ả
Đ THI CHÍNH TH CỀ Ứ
S báo danh:.............ố
KÌ THI CH N H C SINH GI I TINH L P 12 THPT Ọ Ọ Ỏ Ớ
NĂM H C 2012 - 2013Ọ
Môn: V T LÍ –Vong 1Ậ
Khóa ngày: 11/10/2012
Th i gian: 180 phút ờ(Không k th i gian giao đ)ể ờ ề
Câu 1(2,0 đi m):ể Trên măt ban năm ngang co môt kh i ban tru ố
cô đinh có ban kinh R. Trong măt phăng thăng đng vuông goc ư
v i truc O cua ban tru (măt phăng hinh ve) co môt thanh đông ơ
chât AB chiêu dai băng R t a đâu A lên ban tru, đâu B trên ư ơ
măt ban. Trong l ng cua thanh la P. Bo qua ma sat gi a ban ươ ư
tru va thanh. Hê sô ma sat gi a thanh va măt ban la k= ư
3
3
Goc (góc h p b i thanh AB và m t bàn) phaợ ở ặ i thoa man
điêu kiên gi đê thanh trang thai cân băng? ơ
Câu 2 (2,0 đi m):ể Môt mol khi li t ng th c hiên chu trinh ươ ư
1-2-3-1 nh hinh ve. Biêt T ư1 = 300K; T3 = 675K; V3 = 5lit; R =
8,31J/mol.K; cac điêm 1 va 3 cung năm trên môt Parabol có
đnh là toa đô. ỉ
Tinh công sinh ra trong ca chu trinh.
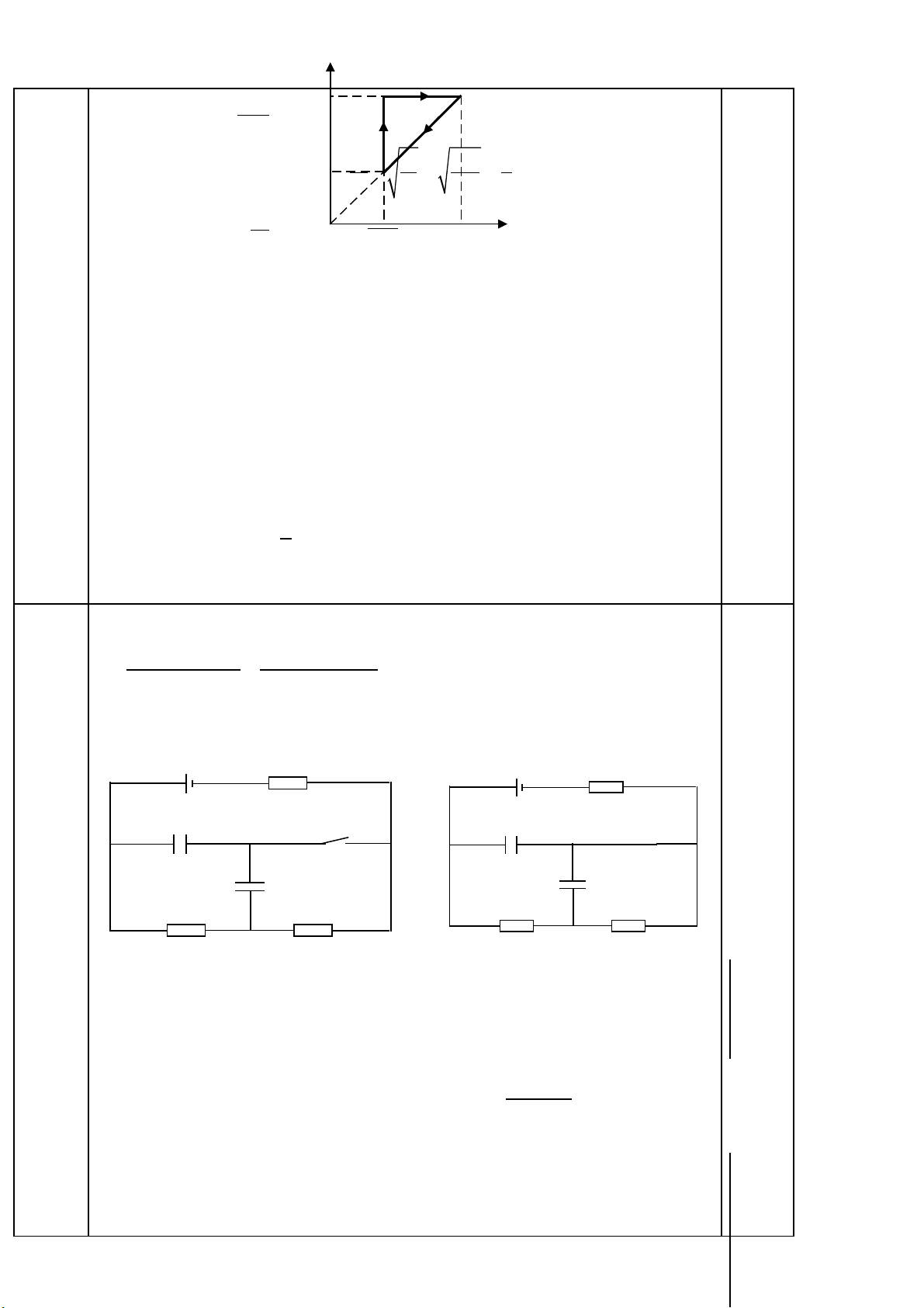
Câu 3 (2,0 đi m):ể Cho m ch đi n nh hình v : E = 6V, ạ ệ ư ẽ
r = R3 = 0,5
Ω
, R1= 3
Ω
, R2 = 2
Ω
, C1 = C2 = 0,2
µ
F, đ l nộ ớ
đi n tích electron e = 1,6.10ệ-19C. B qua đi n tr các dây n i.ỏ ệ ở ố
a) Tìm s electron d ch chuy n qua khóa K và chi u d chố ị ể ề ị
chuy n c a chúng khi khóa K t m chuy n sang đóng?ể ủ ừ ở ể
b) Thay khóa K b ng t Cằ ụ 3 = 0,4
µ
F. Tìm đi n tích trên tệ ụ
C3 trong các tr ng h p sau:ườ ợ
- Thay t Cụ3 khi K đang m .ở
- Thay t Cụ3 khi K đang đóng
Câu 4 (2,0 đi m):ể M t đi m sáng S chuy n đng theo vòng tròn v i v n t c có đ l n không đi ộ ể ể ộ ớ ậ ố ộ ớ ổ
v0 xung quanh tr c chính c a th u kính h i t trong m t ph ng vuông góc v i tr c chính và cách ụ ủ ấ ộ ụ ở ặ ẳ ớ ụ
th u kính m t kho ng d = 1,5f (f là tiêu c c a th u kính). Hãy xác đnh :ấ ộ ả ự ủ ấ ị
a) V trí đt màn đ quan sát đc nh c a S. ị ặ ể ượ ả ủ
b) Đ l n và h ng v n t c nh c a đi m sáng S.ộ ớ ướ ậ ố ả ủ ể
Câu 5 (2,0 đi m):ể M t pittong kh i l ng m có th tr t không ma sátộ ố ượ ể ượ
trong m t xilanh đt n m ngang. Ban đu pittong ngăn xilanh thành haiộ ặ ằ ầ
ph n b ng nhau ch a cùng m t l ng khí lý t ng d i áp su t P,ầ ằ ứ ộ ượ ưở ướ ấ
chi u dài m i ngăn là d, ti t di n c a pittong là S. Pittong hoàn toàn kínề ỗ ế ệ ủ
đ khí hai ngăn không tr n l n vào nhau. D i pittong m t đo n nhể ở ộ ẫ ờ ộ ạ ỏ
r i th ra không v n t c đu. Coi quá trình bi n đi khí trong xilanh làồ ả ậ ố ầ ế ổ
đng nhi t.ẳ ệ
Ch ng minh r ng pittong dao đng đi u hòa. Tìm chu kì c a dao đng đó.ứ ằ ộ ề ủ ộ
……………………. H t………………………ế
O
A
B
R
Hi nh cho câu 1
B
C1
C2
R1R2
R3
AM
N
K
E, r
Hi nh cho câu 3
P, V P, V
Hi nh cho câu 5
V(l)
T(K)
O
12
3
V1
V3
Hi nh cho câu
2
T1T2T3

S GIÁO D C VÀ ĐÀO T OỞ Ụ Ạ
QU NG BÌNHẢ
KÌ THI CH N H C SINH GI I TĨNH L P 12 THPT Ọ Ọ Ỏ Ớ
NĂM H C 2012 – 2013Ọ
Môn: V T LÍ – Vòng 1Ậ
H NG D N CH M Đ CHÍNH TH CƯỚ Ẫ Ấ Ề Ứ
Câu N i dungộĐi mể
Câu 1
(2,0 đ)
Thanh chÞu träng lîng P, ph¶n lùc N
cña b¸n trôc ë A vu«ng gãc víi mÆt
trô (®i qua 0). Ph¶n lùc toàn ph n ầQ
cña mÆt bµn xiªn gãc víi ph¬ng
ngang v× cã ma s¸t, trong ®ã:
N
Q F Q= +
r r
r
; trong ®ã
F
r
lµ lùc
ma s¸t.
Ba lùc
, ,Q N P
rr r
c©n b»ng, vËy giao ®iÓm cña
,N Q
r
r
ph¶i ë trªn gi¸ cña
P
r
.
Ta cã:
0P Q N+ + =
r
r r
(1)
ChiÕu (1) xuèng ox ta cã: Ncos = F ; (2)
ChiÕu (1) xuèng oy : Nsin + QN = P ; (3)
Tam gi¸c OAB lµ c©n nªn gãc
BAN
= 2
LÊy mo men ®èi víi B : P
2sinNR
2
cosR
; (4)
……………………..
MÆt kh¸c :
N
Q
3
3
F
; (5)
…………………….. Ta cã 4 ph¬ng tr×nh cho 4 Èn N; QN; F vµ . Tõ
(4) cã:
sin4
P
2sin2
cosP
N
. Thay vµo (2) nhËn ®îc:
4
gcotP
F
; (6)
Thay vµo (3) thu ®îc: QN = P - Nsin =
4
P3
(7)
………………………
Thay (6) vµ (7) vµo (5) cã:
P
4
3
tg4
P
. Suy ra: tg
3
1
; hay
o
30
MÆt kh¸c, dÔ thÊy r»ng vÞ trÝ cña thanh khi ®Çu A cña thanh lµ tiÕp ®iÓm
víi b¸n trô thì thanh t¹o víi mÆt ngang víi mét gãc giíi h¹n = 450.. VËy tr¹ng th¸i
c©n b»ng cña thanh øng víi gãc thõa m·n ®iÒu kiÖn:
00 4530
.
0,25
0,5
0,25
0,25
0,25
0,5
P
y
A
B
R
N
Q
n
Q
F
x
O

O
P3
V
P
2
V1V3
1
3
2
P1
Câu 2
(2,0 đ)
ë tr¹ng th¸i 3:
25
3
3
3/10.22,11 mN
V
RT
P
…………………………………………….
V× T1=
V12 vµ T3=
V32 nªn:
1 1
3 3
300 2
675 3
V T
V T
= = =
Suy ra
lV 3
10
1
;
48,7
1
1
1 V
RT
P
.105 N/m2…………………………
Ph¬ng tr×nh cña ®o¹n 1-3 trong hÖ täa ®é (P,V) nh sau: Tõ P.V=RT=R
V2
Suy ra P=R
V nªn ®o¹n 1-3 trong hÖ (P,V) lµ ®o¹n th¼ng đi qua góc t a đọ ộ.
…………………..
C«ng sinh ra :
)(312))((
2
1
1313 JVVPPA
…………………………………
0,25
0,5
0,25
0,5
0,5
Câu 3
(2,0 đ)
a)
+ C ng đ dòng đi n trong m ch chính khi K đóng hay K m là:ườ ộ ệ ạ ở
1 2 3
61( )
3 2 0,5 0,5
E
I A
R R R r
= = =
+ + + + + +
………………………………………..
+ Khi K m : Cở1 n i ti p v i Cố ế ớ 2 nên đi n tích c a h các b n t n i v i M: qệ ủ ệ ả ụ ố ớ M = 0
D u đi n tích c a các b n t nh hình v . ……………………………….ấ ệ ủ ả ụ ư ẽ
+ Khi K đóng: d u đi n tích trên các b n t nh hìnhấ ệ ả ụ ư
1 1 1 1 1 2
. .( ) 1( )
AM AB
q C U C U C I R R C
µ
= = = + =
2 2 2 2 2
. . 0, 4( )
NM NB
q C U C U C I R C
µ
= = = =
,
1 2
1, 4( )
M
q q q C
µ
= − − = −
+ Các electron di chuy n t ể ừ
B K M
; +S h t ố ạ
6
12
19
1, 4.10 8,75.10
1,6.10
e
n
−
−
= =
(h t)ạ
b)
Thay t Cụ3 khi K m , K đóng:ở
G i đi n tích c a các t lúc này là: ọ ệ ủ ụ
1 2 3
, ,
M M M
q q q
và có d u nh hình vấ ư ẽ
0,25
0,25
0,25
0,25
C1
C2
R1R2
R3
AB
M
N
K
E, r
+
+
-
-
-
C1
C2
R1R2
R3
AB
M
N
K
E, r
+-
-
-
+

Ta có: +
2 2
2
0, 2
M M
MN
q q
UC
= − = −
(1)
+
1 1
1
1
I.R 3
0, 2
M M
MN MA AN
q q
U U U C
= + = − + = − +
(2)
+
3 3
2
3
. 2
0, 4
M M
MN MB BN
q q
U U U I R
C
= + = − = −
(3)
T (1), (2), (3) ta đc:ừ ượ
1 2 3
0,8 0, 2
M M M MN
q q q U− − + = +
(4)
- Khi K m , thay t Cở ụ 3 thì :
1 2 3
0 0, 25( )
M M M MN
q q q U V− − + = = −�
Do đó
3
0,7
M
q C
µ
=
…………………………………………………………………
- Khi K đóng, thay t Cụ3 thì:
1 2 3
1, 4 2( )
M M M MN
q q q U V− − + = − = −�
Do đó UMB = 0 (V),
3
0
M
q=
………………………………………………………..
0,5
0,25
0,25
Câu 4
(2,0 đ)
+ V trí đt màn d' = ị ặ
df
d f−
= 3f ………………………………………………….
+ k =
'd
d
−
= -2 . Vòng tròn qu đo nh có bán kính l n g p đôi qu đo ỹ ạ ả ớ ấ ỹ ạ
v t……………ậ
+ V n t c góc c a v t và nh nh nhau, nên v n t c dài c a nh có đ l n v' = 2vậ ố ủ ậ ả ư ậ ố ủ ả ộ ớ 0.
……..
+ Ch n tia sáng đi qua quang tâm đ kh o sát, ta nh n th y chi u v n t c nh ng c ọ ể ả ậ ấ ề ậ ố ả ượ
v i chi u v n t c c a v t.V y v n t c c a nh luôn có ph ng ti p tuy n v i qu ớ ề ậ ố ủ ậ ậ ậ ố ủ ả ươ ế ế ớ ỹ
đo c a nó và có chi u ng c chi u chuy n đng c a S.ạ ủ ề ượ ề ể ộ ủ
0,5
0,5
0,5
0,5
Câu 5
(2,0 đ)
-Các l c tác d ng lên pittong g m có: ự ụ ồ
1 2
, , ,mg N F F
r r r
r
(F1 = P1.S, F2 = P2.S).
-Ta luôn có:
0mg N+ = r
r
r
- v trí cân b ng: PỞ ị ằ 1= P2
F01 = F02
- Ch n tr c ox nh hình v , g c O VTCB.Xét pittong v trí có t a đ x béọ ụ ư ẽ ố ở ở ị ọ ộ
+ V1= (d+x). S; V2 = (d-x). S
+ Áp d ng đnh lu t Bôil -Mari t: Pụ ị ậ ơ ố 1.S.(d +x) = P2. S.(d-x) = P.S.d ……………….
+ Áp d ng đnh lu t II Newton: ụ ị ậ
F1 – F2 = ma
1 2 2 2
2 . .
( ). P S d
P P S ma x ma
d x
− = − =� � −
……………………………
0,25
0,5
0,25
A
C1
C2
R1
R2
R3
B
M
N
C3
E, r
+-
-
+
-
+
-
Oxx
F2F1

Vì x<<d nên
2 2 2
d x d−
, thay a = x’’ ta có
''
2. .P S x mx
d
− =
Hay
''
20
PS
x x
md
+ =
……………………………………………………………….
Đi u đó ch ng t pittong dao đng đi u hòa v i t n s góc ề ứ ỏ ộ ề ớ ầ ố
2PS
md
ω
=
và chu kì
22
md
TPS
π
=
……………………………………………………………………………
0,5
0,5
* Ghi chú:
1. Ph n nào thí sinh làm bài theo cách khác đúng v n cho đi m t i đa ph n đó.ầ ẫ ể ố ầ
2. Không vi t công th c mà vi t tr c ti p b ng s các đi l ng, n u đúng v n cho đi m t i đa.ế ứ ế ự ế ằ ố ạ ượ ế ẫ ể ố
3. Ghi công th c đúng mà:ứ
3.1. Thay s đúng nh ng tính toán sai thì cho n a s đi m c a câu.ố ư ử ố ể ủ
3.3. Thay s t k t qu sai c a ý tr c d n đn sai thì cho n a s đi m c a ý đó.ố ừ ế ả ủ ướ ẫ ế ử ố ể ủ
4. N u sai ho c thi u đn v 3 l n tr lên thì tr 0,5 đi m.ế ặ ế ơ ị ầ ở ừ ể
5. Đi m toàn bài làm tròn đn 0,25 đi m.ể ế ể

