
Qu t làm mát đ ng c ô tôạ ộ ơ 27/05/2009
Trong h th ng làm mát đ ng c trên ô tô, qu t làm mát đ c l p sau két n c. N u b n đ ýệ ố ộ ơ ạ ượ ắ ướ ế ạ ể
r ng khi m i kh i đ ng xe, đ ng c còn ngu i, qu t làm mát không quay. Khi đ ng c b t đ uằ ớ ở ộ ộ ơ ộ ạ ộ ơ ắ ầ
nóng lên, qu t b t đ u quay nh ng v i t c đ ch m và khá êm (qu t đóng t c đ 1). M t th iạ ắ ầ ư ớ ố ộ ậ ạ ố ộ ộ ờ
gian sau khi nhi t đ đ ng c đã n đ nh ho c khi b n b t đi u hòa không khí, qu t làm mát b tệ ộ ộ ơ ổ ị ặ ạ ậ ề ạ ắ
đ u đóng t c đ 2, t c đ qu t tăng lên, ti ng n t qu t tăng lên. B n s t đ t ra hàng lo tầ ố ộ ố ộ ạ ế ồ ừ ạ ạ ẽ ự ặ ạ
câu h i, t i sao ho t đ ng c a qu t làm mát l i ph c t p nh v y? Nó đ c đi u khi n nh thỏ ạ ạ ộ ủ ạ ạ ứ ạ ư ậ ượ ề ể ư ế
nào? Qu t làm mát xe ch y d u và xăng có khác nhau không?...ạ ở ạ ầ
Đ làm mát két n c c n ph i có m t l ng không khí đ l n đi qua các lá t n nhi t trong kétể ướ ầ ả ộ ượ ủ ớ ả ệ
n c. Thông th ng khi xe ch y v i t c đ cao, l u l ng khí đi qua két n c là v a đ nh ngướ ườ ạ ớ ố ộ ư ượ ướ ừ ủ ư
khi xe ch y ch m ho c d ng xe thì l u l ng không khí không đ . Vì v y, đ ng c đ c trang bạ ậ ặ ừ ư ượ ủ ậ ộ ơ ượ ị
qu t làm mát đ t o ra l ng không khí c ng b c qua két n c.ạ ể ạ ượ ưỡ ứ ướ

Hi n nay, các xe h i hi n đ i th ng trang b các ki u qu t làm mát g m: Qu t làm mát ch yệ ở ơ ệ ạ ườ ị ể ạ ồ ạ ạ
b ng đ ng c đi n, ki u kh p ch t l ng (kh p n i m m) đi u khi n b ng nhi t đ và h th ngằ ộ ơ ệ ể ớ ấ ỏ ớ ố ề ề ể ằ ệ ộ ệ ố
qu t làm mát thu l c đi u khi n b ng đi n t .ạ ỷ ự ề ể ằ ệ ử
H th ng qu t ch y b ng đ ng c đi n r t nh y c m v i nhi t đ c a n c làm mát và nó chệ ố ạ ạ ằ ộ ơ ệ ấ ạ ả ớ ệ ộ ủ ướ ỉ
cung c p m t l u l ng không khí thích h p khi nhi t đ lên cao. nhi t đ bình th ng ho cấ ộ ư ượ ợ ệ ộ Ở ệ ộ ườ ặ
khi m i kh i đ ng xe, qu t ng ng quay đ đ ng c m lên và gi m tiêu hao nhiên li u, gi mớ ở ộ ạ ừ ể ộ ơ ấ ả ệ ả
ti ng n. ế ồ
Hình 1. Qu t làm mát ch y b ng đ ng c đi nạ ạ ằ ộ ơ ệ
T c đ quay c a qu t đi n có th thay đ i trong ba c p ho c vô c p. Nh v y hi u qu làm mátố ộ ủ ạ ệ ể ổ ấ ặ ấ ờ ậ ệ ả
có th đ c đi u ch nh và phù h p v i nhi t đ n c làm mát b i vì đ đ ng c làm vi c hi uể ượ ề ỉ ợ ớ ệ ộ ướ ở ể ộ ơ ệ ệ
qu thì nhi t đ c a nó ph i đ c duy trì liên t c m c trên 90ả ệ ộ ủ ả ượ ụ ở ứ 0C và d i 120ướ 0C. Hãy quan sát
s đ m ch đi n d i đây mô t ho t đ ng c a qu t làm mát ch y b ng đ ng c đi n m tơ ồ ạ ệ ướ ả ạ ộ ủ ạ ạ ằ ộ ơ ệ ở ộ
c p t c đ .ấ ố ộ

S đ m ch đi n đi u khi n qu t m t c p t c đơ ồ ạ ệ ề ể ạ ộ ấ ố ộ
Khi nhi t đ n c mát còn th p, công t c nhi t đ n c mát đóng, r le đ c n i mát. Nó s hútệ ộ ướ ấ ắ ệ ộ ướ ơ ượ ố ẽ
hai ti p đi m 30 và 87 c a r le tách nhau ra (2 ti p đi m này là ti p đi m th ng đóng) ng tế ể ủ ơ ế ể ế ể ườ ắ
dòng đi n đ n mô t qu t.ệ ế ơ ạ
Khi nhi t đ n c mát tăng lên, công t c nhi t đ n c mát m , m ch r le b ng t, 2 ti p đi mệ ộ ướ ắ ệ ộ ướ ở ạ ơ ị ắ ế ể
30 và 87 ti p xúc v i nhau. M t dòng đi n t c quy s đ n qu t làm quay qu t v i t c đ cao.ế ớ ộ ệ ừ ắ ẽ ế ạ ạ ớ ố ộ
Tùy t ng ki u xe mà các đi m đóng/m c a công t c nhi t đ n c làm mát và c a r le qu t l iừ ể ể ở ủ ắ ệ ộ ướ ủ ơ ạ ạ
ho t đ ng theo chi u ng c l i.ạ ộ ề ượ ạ

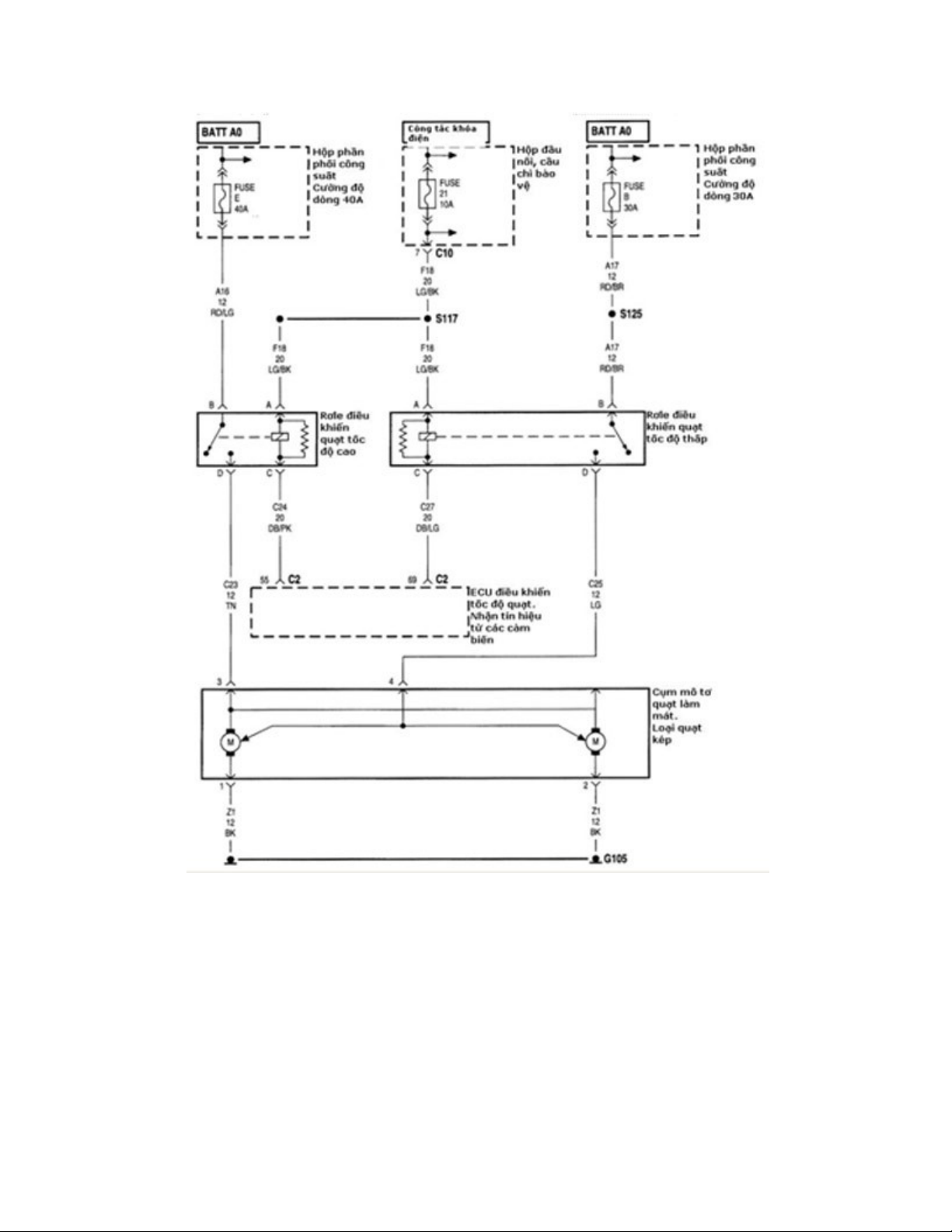
H th ng đi u khi n qu t nhi u c p t c đệ ố ề ể ạ ề ấ ố ộ
h th ng đi u khi n qu t làm mát nhi u c p t c đ , khi đ ng c ch a đ nóng, ECU đi uỞ ệ ố ề ể ạ ề ấ ố ộ ộ ơ ư ủ ề
khi n nh n tín hi u t các c m bi n nhi t đ n c làm mát, c m bi n đi u hòa nhi t đ và c mể ậ ệ ừ ả ế ệ ộ ướ ả ế ề ệ ộ ả
bi n t c đ đ ng c s ng t dòng đi n qua các r le, dòng đi n t các h p phân ph i công su tế ố ộ ộ ơ ẽ ắ ệ ơ ệ ừ ộ ố ấ
không đ n mô t qu t, qu t không quay. Khi đ ng c b t đ u m lên, khi đang ch đ ch yế ơ ạ ạ ộ ơ ắ ầ ấ ở ế ộ ạ
không t i, ECU nh n tín hi u t các c m bi n đi u khi n đóng r le t c đ th p, các qu t quay ả ậ ệ ừ ả ế ề ể ơ ố ộ ấ ạ ở

t c đ th p còn khi có t i ho c khi đ ng c nóng lên quá m c, ECU đi u khi n ng t r le t c đố ộ ấ ả ặ ộ ơ ứ ề ể ắ ơ ố ộ
th p và đóng r le t c đ cao, qu t quay t c đ hai, t c đ tăng và ti ng n tăng lên. ấ ơ ố ộ ạ ở ố ộ ố ộ ế ồ
Các h th ng đi u khi n và lo i qu t ch y b ng mô t đi n th ng đ c l p trên xe ch y b ngệ ố ề ể ạ ạ ạ ằ ơ ệ ườ ượ ắ ạ ằ
xăng vì nh ng u đi m nh c u t o đ n gi n, ít ti ng n, ti t ki m nhiên li u.ữ ư ể ư ấ ạ ơ ả ế ồ ế ệ ệ
Các đ ng c ch y b ng d u diesel th ng không s d ng lo i qu t ch y b ng đi n mà đ cộ ơ ạ ằ ầ ườ ử ụ ạ ạ ạ ằ ệ ượ
thay th b ng qu t có kh p ch t l ng. Đ i v i lo i qu t có kh p ch t l ng đi u khi n b ng nhi tế ằ ạ ớ ấ ỏ ố ớ ạ ạ ớ ấ ỏ ề ể ằ ệ
đ này thì t c đ qu t đ c đi u khi n b i c m bi n nhi t đ c a lu ng không khí đi qua kétộ ố ộ ạ ượ ề ể ở ả ế ệ ộ ủ ồ
n c.ướ
Qu t có kh p ch t l ngạ ớ ấ ỏ

